|
起重机用铸造卷筒型式、尺寸和技术条件(JB/T 9006.2—1999、JB/T 9006.3—1999) |
||||||||||||||||||||||||||||||||||||||
|
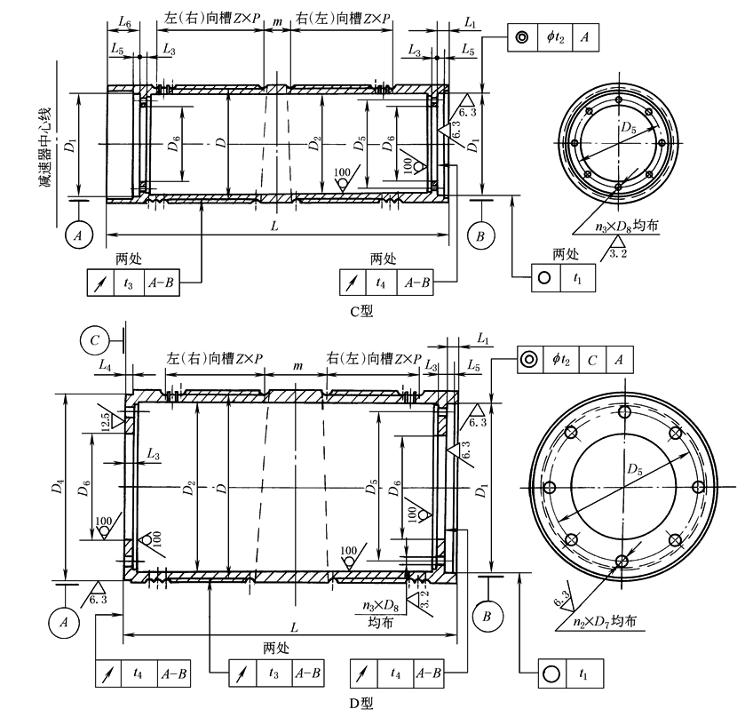
(1)应用范围 主要适用于桥式起重机和门式起重机所用的钢丝绳铸造卷筒(以下简称卷筒),其他起重机所用的卷筒也可参照采用 (2)型式和尺寸 卷筒的结构型式分A、B、C、D型4种。推荐先采用A、B型。卷筒尺寸应分别符合表1和表2的规定。卷筒组装结构示例见表起重机卷筒组装结构示例。卷筒长度L值推荐采用R40系列;图中“Z”为卷筒槽数 (3)技术要求 1)材料 铸造卷筒的材料应采用不低于GB/T 9439中规定的HT200灰铸铁,或GB/T 11352中规定的ZG270-500铸钢。铸铁件需经时效处理以消除内应力,铸钢件应进行退火处理 2)表面质量 卷筒不得有裂纹。成品卷筒的表面上不得有影响使用性能和有损外观的显著缺陷(如气孔、疏松、夹渣等) 3)尺寸公差和表面粗糙度 同一卷筒上左右螺旋槽的底径(即卷筒直径D)差,不得超过GB/T 1801和GB/T 1802中规定的h12 加工表面未注公差尺寸的公差等级应按GB/T 1804中的m级(中等级) 未注加工表面粗糙度Ra值应按GB/T 1031中的12.5μm 4)形位公差 卷筒上配合圆(D1)的圆度t1、同轴度f t2、左右螺旋槽的径向圆跳动t3以及端面圆跳动t4,不得大于GB/T 1184中的下列值:
f t2不低于8级;
t4不低于8级 5)压板用螺孔 钢丝绳压板用的螺孔必须完整,螺纹不得有破碎、断裂等缺陷 6)焊缝 对于必须施焊的铸钢卷筒,其重要焊缝不得有裂纹和未熔合等缺陷。其焊缝质量应符合GB/T 3323中的Ⅱ级质量要求 |
||||||||||||||||||||||||||||||||||||||
|
标记示例: 卷筒直径D=500mm,长度L=1500mm;槽底半径R=10mm,标准槽形槽距P1=20mm;起升高度H=12m,滑轮率α=4;靠近减速器一端的卷筒槽向为左的A型卷筒,标记为: 卷筒 A500×1500-10×20-12×4-左 JB/T 9006.2—1999 卷筒直径D=800mm,长度L=3000mm;槽底半径R=15mm,标准槽形槽距P1=31mm;起升高度H=16m,滑轮率α=5,靠近减速器一端的卷筒槽向为右的B型卷筒,标记为: 卷筒 B800×3000-15×31-16×5-右 JB/T 9006.2—1999 表1 mm |
||||||||||||||||||||||||||||||||||||||
|
A
型 |
D h12 |
D1 H8 |
D2
|
D3 H8 |
n |
n1 |
L1 |
L2 |
D h12 |
D1 H8 |
D2
|
D3 H8 |
n |
n1 |
L1 |
L2 |
||||||||||||||||||||||
|
315 |
290 |
285 |
17 |
6 |
6 |
60 |
20 |
800 |
740 |
730 |
28 |
8 |
8 |
120 |
50 |
|||||||||||||||||||||||
|
400 |
370 |
360 |
70 |
28 |
900 |
830 |
820 |
32 |
160 |
70 |
||||||||||||||||||||||||||||
|
500 |
465 |
455 |
8 |
8 |
90 |
40 |
1000 |
925 |
915 |
180 |
80 |
|||||||||||||||||||||||||||
|
630 |
580 |
570 |
25 |
100 |
45 |
1120 |
1050 |
1040 |
||||||||||||||||||||||||||||||
|
710 |
660 |
650 |
120 |
50 |
1250 |
1170 |
1160 |
200 |
100 |
|||||||||||||||||||||||||||||
|
B
型 |
D h12 |
D1 H8 |
D2
|
D3 H8 |
D4 h8 |
D5 |
D6 |
D7 H7 |
n |
n1 |
L1 |
L2 |
L3 |
L4 |
||||||||||||||||||||||||
|
800 |
740 |
730 |
28 |
810 |
660 |
550 |
50 |
8 |
8 |
120 |
50 |
40 |
30 |
|||||||||||||||||||||||||
|
1000 |
925 |
915 |
32 |
1015 |
810 |
660 |
56 |
180 |
80 |
45 |
||||||||||||||||||||||||||||
|
1120 |
1050 |
1040 |
1135 |
920 |
750 |
60 |
50 |
|||||||||||||||||||||||||||||||
|
1250 |
1170 |
1160 |
1265 |
1050 |
870 |
200 |
100 |
|||||||||||||||||||||||||||||||
|
1400 |
1320 |
1310 |
1415 |
1200 |
1010 |
|||||||||||||||||||||||||||||||||
|
1600 |
1520 |
1510 |
1615 |
1400 |
1200 |
220 |
120 |
|||||||||||||||||||||||||||||||
|
1800 |
1720 |
1710 |
1815 |
1600 |
1400 |
|||||||||||||||||||||||||||||||||
|
注:D2按铸铁材料确定,根据起重量和材料的变化允许作适当变动。 |
||||||||||||||||||||||||||||||||||||||
|
标记示例: 卷筒直径D=500mm,长度L=1500mm;槽底半径R=10mm,标准槽形槽距P1=20mm;起升高度H=12m,滑轮率α=4;靠近减速器一端的卷筒槽向为左的C型卷筒,标记为: 卷筒 C500×1500-10×20-12×4-左 JB/T 9006.2—1999 卷筒直径D=800mm,长度L=3000mm;槽底半径R=15mm,标准槽形槽距P1=31mm;起升高度H=16m,滑轮率α=5,靠近减速器一端的卷筒槽向为右的D型卷筒,标记为: 卷筒 D800×3000-15×31-16×5-右 JB/T 9006.2—1999 表2 mm |
||||||||||||||||||||||||||||||||||||||
|
C
型 |
D h12 |
D1 H8 |
D2 |
D5 |
D6 |
D8 H7 |
n3 |
L1 |
L3 |
L5 |
L6 |
|||||||||||||||||||||||||||
|
315 |
285 |
285 |
250 |
200 |
17 |
6 |
32 |
25 |
20 |
30 |
||||||||||||||||||||||||||||
|
400 |
360 |
360 |
315 |
250 |
80 |
|||||||||||||||||||||||||||||||||
|
500 |
465 |
455 |
430 |
350 |
8 |
42 |
30 |
30 |
145 |
|||||||||||||||||||||||||||||
|
630 |
580 |
570 |
520 |
440 |
21 |
|||||||||||||||||||||||||||||||||
|
710 |
660 |
650 |
580 |
500 |
25 |
50 |
40 |
35 |
138 |
|||||||||||||||||||||||||||||
|
800 |
740 |
730 |
660 |
580 |
28 |
206 |
||||||||||||||||||||||||||||||||
|
D
型 |
D h12 |
D1 H8 |
D2 |
D4 h8 |
D5 |
D6 |
D7 H7 |
D8 H7 |
n2 |
n3 |
L1 |
L3 |
L4 |
L5 |
||||||||||||||||||||||||
|
800 |
740 |
730 |
810 |
660 |
550 |
50 |
28 |
8 |
8 |
50 |
40 |
30 |
35 |
|||||||||||||||||||||||||
|
1000 |
925 |
915 |
1015 |
810 |
660 |
56 |
32 |
60 |
45 |
40 |
||||||||||||||||||||||||||||
|
1120 |
1050 |
1040 |
1135 |
920 |
750 |
60 |
65 |
50 |
45 |
|||||||||||||||||||||||||||||
|
1250 |
1170 |
1160 |
1265 |
1050 |
870 |
|||||||||||||||||||||||||||||||||
|
1400 |
1320 |
1310 |
1415 |
1200 |
1010 |
|||||||||||||||||||||||||||||||||
|
1600 |
1520 |
1510 |
1615 |
1400 |
1200 |
|||||||||||||||||||||||||||||||||
|
注:D2按铸铁材料确定,根据起重量大小和材料的变化允许作适当变动。 |
||||||||||||||||||||||||||||||||||||||



