|
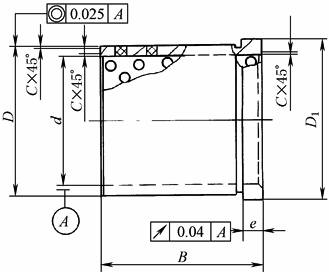
WQZD带挡边整体式镶嵌轴承尺寸 /mm |
|||||||||
|
标记示例:带挡边整体式镶嵌轴承WQZD030 |
代 号 |
d (H7或H8) |
D |
D1 (d11) |
B (h12) |
e |
C |
重量 /kg |
|
|
WQZD 030 |
30 |
38 |
s6 |
48 |
34 |
6 |
1 |
0.1656 |
|
|
WQZD 035 |
35 |
45 |
55 |
45 |
6.5 |
1 |
0.2975 |
||
|
WQZD 040 |
40 |
50 |
60 |
50 |
7.5 |
1 |
0.3728 |
||
|
WQZD 045 |
45 |
55 |
65 |
55 |
7.5 |
1 |
0.4480 |
||
|
WQZD 050 |
50 |
60 |
70 |
60 |
7.5 |
1 |
0.5302 |
||
|
WQZD 060 |
60 |
70 |
80 |
70 |
10 |
2 |
0.7420 |
||
|
WQZD 070 |
70 |
85 |
95 |
80 |
10 |
2 |
1.428 |
||
|
WQZD 080 |
80 |
95 |
110 |
95 |
12.5 |
2 |
2.015 |
||
|
WQZD 090 |
90 |
105 |
120 |
105 |
12.5 |
2 |
2.445 |
||
|
WQZD 100 |
100 |
115 |
130 |
115 |
12.5 |
2 |
2.918 |
||
|
WQZD 110 |
110 |
125 |
r6 |
140 |
125 |
12.5 |
2 |
3.432 |
|
|
WQZD 120 |
120 |
135 |
150 |
140 |
15 |
2 |
4.197 |
||
|
WQZD 140 |
140 |
160 |
175 |
160 |
20 |
2 |
7.424 |
||
|
WQZD 160 |
160 |
180 |
200 |
180 |
20 |
2 |
9.632 |
||
|
注:1.轴承采用整体有衬正滑动轴承座 (JB/T 2560—2007)。 2.与外径相配座孔的偏差为H7。 |
|||||||||

