|
对开式四螺柱正滑动轴承(JB/T 2562—2007) mm |
|||||||||||||||||
|
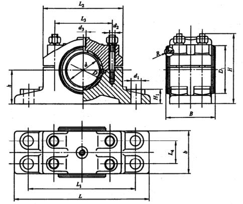
适于环境温度为-20~80℃的工作条件。 标记示例:d=100mm的对开式四螺柱正滑动轴承座:H4100 轴承座 JB/T 2562-2007
|
|||||||||||||||||
|
型号 |
d (H8) |
D |
D1 |
B |
b |
H≈ |
h (h12) |
H1 |
L |
L1 |
L2 |
L3 |
L4 |
d1 |
d2 |
R |
重量 ≈/kg |
|
H4050 |
50 |
60 |
70 |
75 |
60 |
105 |
50 |
25 |
200 |
160 |
120 |
90 |
30 |
14.5 |
M10×1 |
2.5 |
4.2 |
|
H4060 |
60 |
70 |
80 |
90 |
75 |
125 |
60 |
25 |
240 |
190 |
140 |
100 |
40 |
18.5 |
6.5 |
||
|
H4070 |
70 |
85 |
95 |
105 |
90 |
135 |
70 |
30 |
260 |
210 |
160 |
120 |
45 |
18.5 |
M14×1.5 |
9.5 |
|
|
H4080 |
80 |
95 |
110 |
120 |
100 |
160 |
80 |
35 |
290 |
240 |
180 |
140 |
55 |
24 |
14.5 |
||
|
H4090 |
90 |
105 |
120 |
135 |
115 |
165 |
85 |
35 |
300 |
250 |
190 |
150 |
70 |
24 |
3 |
18.0 |
|
|
H4100 |
100 |
115 |
130 |
150 |
130 |
175 |
90 |
40 |
340 |
280 |
210 |
160 |
80 |
24 |
23.0 |
||
|
H4110 |
110 |
125 |
140 |
165 |
140 |
185 |
95 |
40 |
350 |
290 |
220 |
170 |
85 |
24 |
30.0 |
||
|
H4120 |
120 |
135 |
150 |
180 |
155 |
200 |
105 |
40 |
370 |
310 |
240 |
190 |
90 |
28 |
41.5 |
||
|
H4140 |
140 |
160 |
175 |
210 |
170 |
230 |
120 |
45 |
390 |
330 |
260 |
210 |
100 |
28 |
4 |
51.0 |
|
|
H4160 |
160 |
180 |
200 |
240 |
200 |
250 |
130 |
50 |
410 |
350 |
280 |
230 |
120 |
28 |
59.5 |
||
|
H4180 |
180 |
200 |
220 |
270 |
220 |
260 |
140 |
50 |
460 |
400 |
320 |
260 |
140 |
35 |
73.0 |
||
|
H4200 |
200 |
230 |
250 |
300 |
245 |
295 |
160 |
55 |
520 |
440 |
360 |
300 |
160 |
42 |
5 |
98.0 |
|
|
H4220 |
220 |
250 |
270 |
320 |
265 |
360 |
170 |
60 |
550 |
470 |
390 |
330 |
180 |
42 |
125.0 |
||
|
注:1.与轴承座配合的轴颈应进行表面硬化。 2.轴颈圆角尺寸按GB/T 6403.4选取。 3.技术条件应符合 JB/T 2564 的规定。 |
|||||||||||||||||

