|
省气式组合真空发生器的原理及技术参数 |
||||
|
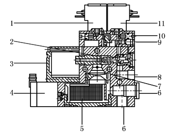
省气式组合真空发生器剖视图 |
德国FESTO省气式组合真空发生器(型号VDMAI) |
1—电磁阀,用于控制喷射器脉冲;2—文丘里喷嘴(喷射器和接收器喷嘴);3—特殊消声器;4—真空开关;5—过滤器,用于吸入的空气;6—两个真空口;7——单向阀;8—进气口;9—喷射器脉冲手控装置;10—手控装置;11—电磁阀,用于控制真空的产生 |
||
|
工 作 原 理 |
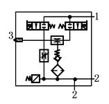
带空气节省回路PNP输出 1—进气口;2—真 空口;3—排气口 |
省气式组合真空发生器的进气气源分别接入两个二位二通电磁阀(一个产生真空,另一个产生正压,破坏真空)。当产生真空的电磁阀通电时,阀被驱动,压缩空气从1(P)流向3(R),根据喷射原理在2(V)产生真空。电磁阀断电时,吸气停止。集成的消声器能把排气噪声降至最低 一旦当产生真空的电磁阀的电压信号被切断,并且产生正压喷射的电磁阀被启动,真空口2的真空立即消失变为正压。集成的消声器能把气噪声降至最低 另外,增设了一个具有空气节省功能的真空开关。开关的两个电位计能够把真空度设置在一定的范围以内,以便吸住工件。当泄漏使真空水平下降至低于设定值时,开关产生一个脉冲信号,驱动产生真空的电磁阀工作,又产生一个高的真空度,以便吸住工件。在这个过程中,由于单向阀的作用,即使真空发生器的电磁阀不工作,真空度也能得到维持 |
||
|
省气式组合真空发生器的零部件功能特性 |
零部件名称 |
功能 |
优点 |
|
|
1—电磁阀,用于控制喷射器脉冲,二位三通阀,用于控制喷射器脉冲 |
一旦控制真空发生的电磁阀11断开,同时控制喷射器脉冲的电磁阀接通,气口6的真空会因为压缩空气的出现而立即消失 |
(1)快速消除真空 (2)准确、迅速地释放工件 (3)缩短真空喷射器的工作周期 |
||
|
2—文丘里喷嘴(喷射器和接收器喷嘴),是最重要的喷射器元件,用于真空的产生 |
当进气口8接上气源,压缩空气便进入气流喷嘴,喷嘴内狭窄的通径使气流的速度被提升到音速的5倍,加速后的气流由接收器喷嘴接收并直接导入消声器3。此时,在气流喷嘴和接收器喷嘴之间便产生一个吸气效应,将空气从过滤器抽入,于是真空便在气口6处形成了 |
通过变化喷嘴的通径或是气源压力可以改变和控制喷射器的性能 |
||
|
3—特殊消声器(封闭型、平面型或是圆形),用于降低排气时的噪声 |
消声器由透气的塑料或是金属合金制成。气流从喷嘴射出的速度达到音速的5倍,消声器能够对高速气流起到很好的缓冲作用,从而使得压缩空气(排出气体)在进入大气以前先进行降噪处理 |
在喷射器运行的过程中减小排气噪声 |
||
|
4—真空开关,PNP或NPN输出,用于压力监控 |
在真空开关上可以通过两个电位计对保持工件所需的真空度范围进行设定,一旦达到了这一真空范围,开关便会发出信号使电磁阀关闭真空发生器(空气节省功能),单向阀7用于维持真空状态,如果真空范围低于所要求的水平,信号会控制真空发生器重新打开,若是由于故障原因所需的真空水平再也无法实现,则真空发生器被关闭 |
(1)空气节省功能:真空度达到要求水平时,真空发生器被关闭 (2)安全功能:在真空水平向上或向下超出规定值时对真空发生器进行控制 |
||
|
5—过滤器,用于抽入的空气,带污浊度指示,40μm过滤等级 |
在真空口6和真空发生器2或是单向阀7之间集成了一个大面积的塑料过滤器。在吸气操作中,空气在被吸入到真空发生器以前先被过滤,过滤器的可拆卸式视窗可指示过滤器的受污染程度 |
(1)监控系统的受污染程度 (2)对元件起到防护作用 (3)有污浊显示,能确保维护保养工作的定期进行 |
||
|
6—两个真空口(V)或(2),带内螺纹 |
真空元件可被连接在这里(例如真空气爪)。根据实际的应用要求,可以使用其中一个或是同时使用两个 |
|
||
|
7—内置式单向阀
|
在真空发生器关闭以后,能有效防止吸入空气的倒流,从而避免对系统的真空水平产生影响 |
在真空发生器关闭以后使真空得以维持(结合真空开关4一起使用,便形成了空气节省功能) |
||
|
8—进气口(P)或(1) |
产生真空所需的进气口(P)或(1)被集成在喷射器的壳体内 |
|
||
|
9—喷射器脉冲手动控制 |
气流的强度以及受其影响的工件脱离真空气爪的速度可以通过手动方式进行调整 |
便于根据实际的应用要求调整系统 |
||
|
10—手控装置 |
不通过电信号而通过电磁阀上的柱塞对阀进行切换,但在电信号已经存在的情况下,不能手动使之无效 |
电磁阀的手控操控 |
||
|
11—电磁阀,用于控制真空的产生,二位三通阀,用于控制真空的产生 |
当有信号驱动时,压缩空气流入真空发生器从而产生真空 |
结合真空开关4以及单向阀7一起使用,便形成了空气节省功能 |
||


