|
符合ISO 5599标准的电磁换向阀 |
|
|
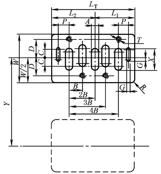
表1 符合ISO 5599标准电磁换向阀主要界面尺寸 |
|
|
|
ISO 5599标准电磁换向阀最主要界面尺寸反映在B、D、W及Y,如本表中有三角记号。2B、4B、D为四个螺钉安装尺寸,W为两个阀中心距离,即反映阀的宽度。凡符合ISO 5599标准电磁换向阀,2B、4B、D四个螺钉安装尺寸是相同的,但W尺寸只能比其小 |
|
表2 ISO阀安装面尺寸(不带电气接头) mm |
|||||||||||||||
|
规格 |
A |
B |
C |
D |
G |
L1 (min) |
L2 (min) |
LT (min) |
P |
R (max) |
T |
W (min) |
X |
Y |
气孔面积 /mm2 |
|
1 2 3 4 5 6 |
4.5 7 10 13 17 20 |
9 12 16 20 25 30 |
9 10 11.5 14.5 18 22 |
14 19 24 29 34 44 |
3 3 4 4 5 5 |
32.5 40.5 53 64.5 79.5 95 |
— — — 77.5 91.5 105 |
65 81 106 142 171 200 |
8.5 10 13 15.5 19 22.5 |
2.5 3 4 4 5 5 |
M5×0.8 M6×1 M8×1.25 M8×1.25 M10×1.5 M10×1.5 |
38 50 64 74 88 108 |
16.5 22 29 36.5 42 50.5 |
43 56 71 82 97 119 |
79 143 269 438 652 924 |
|
表3 ISO 5599标准阀的主要技术参数 |
|||||||||||||||
|
ISO 5599标准阀是具气动底座的板式阀,板式连接有单个板接方式和集成板接两种(按ISO标准分类),有电控和气控两种控制方式,ISO 5599标准阀具内先导或外先导两种动作方式,有气弹簧复位功能或机械弹簧复位,下列图以德国FESTOMNlH系列产品为例,主要技术参数见本表,单电控电磁阀和三位五通电控电磁阀结构及尺寸参数见下表 不同系列的ISO阀的区别主要反映在功耗上,电插座尺寸上,电接口标准上(有的接口标准符合EN 175301-803、A型,有的采用圆形4针电插口M12×1等),不同的工作电压上,还反映在开关时间上。表二位二通直动式流体阀列出的是在板接连接界面上尺寸相同的气动厂商名单、产品型号 |
|||||||||||||||
|
主 要 技 术 参 数 |
ISO规格 |
1 |
2 |
3 |
|||||||||||
|
阀功能 |
二位五通,单电控 |
||||||||||||||
|
结构特点 |
滑阀 |
||||||||||||||
|
密封原理 |
软性 |
||||||||||||||
|
驱动方式 |
电 |
||||||||||||||
|
复位方式 |
机械弹簧或气弹簧 |
||||||||||||||
|
先导控制方式 |
先导控制 |
||||||||||||||
|
先导气源 |
内先导或外先导 |
||||||||||||||
|
流动方向 |
单向 |
||||||||||||||
|
排气功能 |
带流量控制 |
||||||||||||||
|
手控装置 |
通过附件,锁定 |
||||||||||||||
|
安装方式 |
通孔安装 |
||||||||||||||
|
安装位置 |
任意位置 |
||||||||||||||
|
公称通径/mm |
8 |
11 |
14.5 |
||||||||||||
|
标准额定流量/L·min-1 |
1200 |
2300 |
4500 |
||||||||||||
|
阀位尺寸/mm |
43 |
56 |
71 |
||||||||||||
|
底座上的气接口 |
G¼ |
G3/8 |
G½ |
||||||||||||
|
产品质量/g |
450 |
710 |
1000 |
||||||||||||
|
排气噪声级/dB(A) |
85 |
||||||||||||||
|
工 作 和 环 境 条 件 |
复位方式 |
气复位 |
机械复位 |
||||||||||||
|
工作介质 |
过滤压缩空气,润滑或未润滑 真空 |
||||||||||||||
|
工作压力/bar |
内先导气源 |
2~10 |
3~10 |
||||||||||||
|
外先导气源 |
-0.9~+16 |
-0.9~+16 |
|||||||||||||
|
先导压力/bar |
2~10 |
3~10 |
|||||||||||||
|
环境温度/℃ |
-10-50 |
||||||||||||||
|
介质温度/℃ |
-10-50 |
||||||||||||||
|
阀 的 响 应 时 间 / ms |
二位五通单电控 |
ISO规格 |
1 |
2 |
3 |
||||||||||
|
复位方式 |
气动 |
机械 |
气动 |
机械 |
气动 |
机械 |
|||||||||
|
开 |
23 |
17 |
46 |
24 |
49 |
33 |
|||||||||
|
关 |
32 |
39 |
69 |
62 |
71 |
74 |
|||||||||
|
二位五通双电控 |
ISO规格 |
1 |
2 |
3 |
|||||||||||
|
|
|
14口为主控信号 |
|
14口为主控信号 |
|
14口为主控信号 |
|||||||||
|
|
18 |
12:18ms;14:l5ms |
21 |
12:24ms;14:21ms |
21 |
12:24ms;14:21ms |
|||||||||
|
三位五通电控 |
ISO规格 |
1 |
2 |
3 |
|||||||||||
|
|
开 |
关 |
开 |
关 |
开 |
关 |
|||||||||
|
带N1型电磁线圈 |
|||||||||||||||
|
中封式 |
20 |
44 |
33 |
82 |
33 |
82 |
|||||||||
|
中泄式 |
20 |
46 |
36 |
84 |
36 |
84 |
|||||||||
|
中压式 |
20 |
46 |
35 |
78 |
35 |
78 |
|||||||||
|
电 参 数 |
N1型电磁线圈 |
||||||||||||||
|
电接口 |
插头,方形结构,符合EN175301-803标准,A型 |
||||||||||||||
|
工作电压 |
直流电压/V |
24 |
|||||||||||||
|
交流电压/V |
110/230(50-60Hz) |
||||||||||||||
|
线圈特性 |
直流电/W |
2.5 |
|||||||||||||
|
交流电/V·A |
开关:7.5 保持:5 |
||||||||||||||
|
防护等级符合EN 60529标准 |
IP65 |
||||||||||||||
|
表4 MN1H系列单、双电控及三位五通电磁阀 |
||||||||||||||||||||||||||||||||||||||||
|
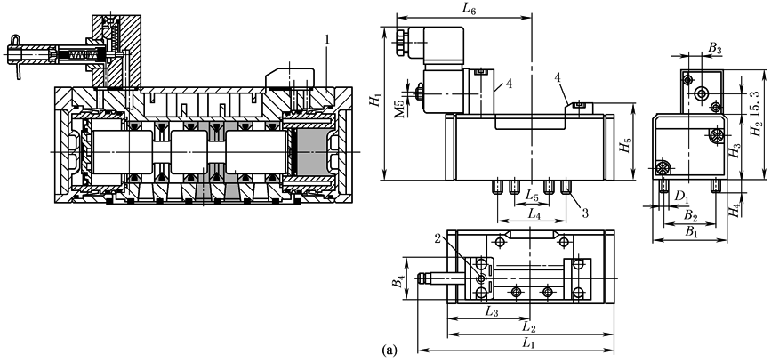
MN1H 系列 的单 电控 电磁 阀结 构图 及尺 寸参 数 |
1—阀体,材料为压铸合金、聚醋酸酯,其密封件材料为丁腈橡胶(两者材料中都不含铜和四氟乙烯; 2—手控装置;3—安装螺钉;4—标牌槽 mm |
|||||||||||||||||||||||||||||||||||||||
|
型号 |
B1 |
B2 |
B3 |
B4 |
D1 |
H1 |
H2 |
H3 |
H4 |
H5 |
L1 |
L2 |
L3 |
L4 |
L5 |
L6 |
||||||||||||||||||||||||
|
ISO 规格1 |
MNlH-5/2 |
42 |
28 |
6 |
30 |
M5 |
106 |
74 |
38 |
9 |
46.5 |
117.5 |
87.6 |
43.8 |
36 |
18 |
89 |
|||||||||||||||||||||||
|
MNlH-5/2-FR |
128 |
98 |
||||||||||||||||||||||||||||||||||||||
|
ISO 规格2 |
MNlH-5/2 |
54 |
38 |
9 |
30 |
M6 |
116 |
84 |
48 |
9.5 |
56.5 |
147.6 |
123.4 |
61.7 |
48 |
24 |
98 |
|||||||||||||||||||||||
|
MNlH-5/2-FR |
161.5 |
140.7 |
||||||||||||||||||||||||||||||||||||||
|
ISO 规格3 |
MNlH-5/2 |
65 |
48 |
12 |
30 |
M8 |
123 |
91 |
55 |
12 |
63.5 |
169 |
145.4 |
72.7 |
64 |
32 |
109 |
|||||||||||||||||||||||
|
MNlH-5/2-FR |
184.8 |
164.7 |
||||||||||||||||||||||||||||||||||||||
|
MN1H 系列 的双 电控 电磁 阀结 构图 及尺 寸参 数 |
双电控电磁阀技术参数除了复位方式仅采用机械弹簧复位外,开关时间与单电控电磁阀不同(ISO规格1号阀:开18ms、换向开15ms,ISO规格2号阀:开24ms、换向开21ms,ISO规格3号阀:开24ms、换向开21ms),通常双电控的开关时间比单电控的开关时间要快,重量与单电控电磁阀不同;双电控电磁阀的工作压力为2~10bar。其余技术指标参数可参考表2。双电控电磁阀结构图及尺寸参数可见图b
1—阀体,材料为压铸铝合金,聚醋酸酯,密封件材料为丁腈橡胶;2—手控装置;3—安装螺钉;4—标牌槽 mm |
|||||||||||||||||||||||||||||||||||||||
|
ISO规格 |
B1 |
B2 |
B3 |
B4 |
D1 |
H1 |
H2 |
H3 |
H4 |
L1 |
L2 |
L3 |
L4 |
L5 |
L6 |
|||||||||||||||||||||||||
|
1 |
42 |
28 |
6 |
30 |
M5 |
106 |
74 |
38 |
9 |
147.3 |
87.6 |
43.8 |
36 |
18 |
89 |
|||||||||||||||||||||||||
|
2 |
54 |
38 |
9 |
30 |
M6 |
116 |
84 |
48 |
9.5 |
165 |
123.4 |
61.7 |
48 |
24 |
98 |
|||||||||||||||||||||||||
|
3 |
65 |
48 |
12 |
30 |
M8 |
123 |
91 |
55 |
12 |
185.7 |
145.4 |
72.7 |
64 |
32 |
109 |
|||||||||||||||||||||||||
|
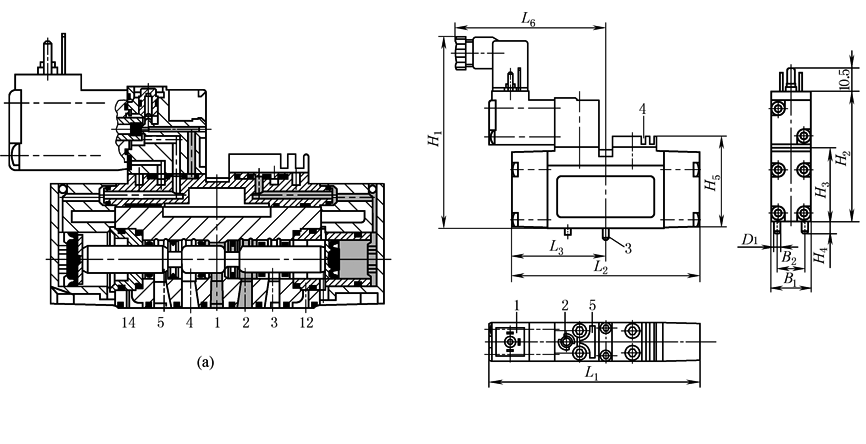
MN1H 系列 的三 位五 通电 磁阀 结构 图及 尺寸 参数 |
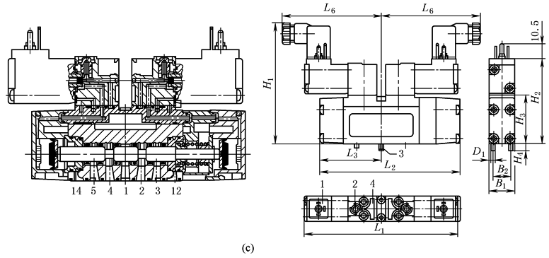
三位五通电磁阀技术参数除了复位方式仅采用机械弹簧复位外,开关时间与单电控电磁阀不同(ISO规格1号阀:中封式开20ms、关44ms;中泄式开20ms、关46ms;中压式开20ms、关46ms。ISO规格2号阀:中封式开33ms、关82ms;中泄式开36ms、关84ms;中压式开35ms、关78ms。ISO规格3号阀:中封式开33ms、关82ms;中泄式开36ms、关84ms;中压式开35ms、关78ms);三位五通的工作压力为3~10bar。先导控制压力为3~10bar其余技术指标参数可参考表2。三位五通电磁阀结构图及尺寸参数见图c和图d
1—阀体材料为压铸铝合金、聚醋酸酯,密封件材料为丁腈橡胶(材料不含铜和聚四氟乙烯);2—手控装置; 3—安装螺钉;4—标牌槽 mm |
|||||||||||||||||||||||||||||||||||||||
|
ISO规格 |
1 |
2 |
3 |
ISO规格 |
1 |
2 |
3 |
|||||||||||||||||||||||||||||||||
|
B1 |
42 |
54 |
65 |
H4 |
9 |
9.5 |
12 |
|||||||||||||||||||||||||||||||||
|
B2 |
28 |
38 |
48 |
L1 |
142.6 |
160 |
181 |
|||||||||||||||||||||||||||||||||
|
B3 |
6 |
9 |
12 |
L2 |
108.4 |
158 |
184 |
|||||||||||||||||||||||||||||||||
|
B4 |
30 |
30 |
30 |
L3 |
54.2 |
79 |
92 |
|||||||||||||||||||||||||||||||||
|
D1 |
M5 |
M6 |
M8 |
L4 |
36 |
48 |
64 |
|||||||||||||||||||||||||||||||||
|
H1 |
100 |
110 |
117 |
L5 |
18 |
24 |
32 |
|||||||||||||||||||||||||||||||||
|
H2 |
70.3 |
80.3 |
87.3 |
L6 |
89 |
98 |
109 |
|||||||||||||||||||||||||||||||||
|
H3 |
38 |
48 |
55 |
|
|
|
|
|||||||||||||||||||||||||||||||||
|
表5 符合ISO 5599标准换向阀生产厂商 |
|||||||
|
厂商 |
型号 |
ISO规格 |
流量/接口 尺寸 |
压力/温度 范围 |
电压/V |
电接口形式 |
基本型式 |
|
CKD |
PV5-6 PV5-8 |
1号 2号 |
Rc¼:25mm2;Rc3/8:28mm2;Rc½:55mm2;Rc¾:63mm2 |
1.5~l0bar; -10~+60℃ |
DC:12.24 功耗:1.8W AC:100、200 |
|
5/2单电控、5/2双电控、5/3电控 |
|
Festo |
MNlH |
1号 2号 3号 |
1200L/min、 2300L/min、 4500L/min |
2~16bar; -10~+60℃ |
DC:24 AC:110/230 (50~60Hz) |
方形,符合EN 175301-803、A型 |
5/2单电控(气控)、5/2双电控(气控),5/3电控(气控) |
|
MFH |
1号 2号 3号 |
1200L/min、 2300L/min、 4500L/min |
2~16bar; -10~+60℃ |
DC:12、24、42、48 AC:24、42、48、110、230、240(50~60Hz) |
F型线圈 |
5/2单电控(气控)、5/2双电控(气控)、5/3电控(气控) |
|
|
MDH |
4号 |
|
|
|
|
|
|
|
MEBH |
1号 2号 3号 |
|
|
|
|
|
|
|
Metal Work |
ISV 电控阀 |
1号 2号 |
1100L/min、 2700L/min |
1~l0bar; -10~+60℃ |
DC:12、24 AC:24、110、220 |
DIN 43650 A型、M12 |
IPV为气控阀 |
|
Norgren |
ISO STAR |
1号 2号 3号 |
1230L/min、 2450L/min、 4400L/min |
1~16bar; -15~+50℃ |
DC:12、24 AC:24、48、110、220 |
CNOMO型或DIN 43650A型 |
复位有气弹簧或机械弹簧 |
|
Numetics |
ISO 5599i-12 ISO 5599i-23 ISO 5599i-34 |
1号 2号 3号 |
|
0~16bar; -20~+80℃ |
|
|
金属密封阀 |
|
Parker |
DX1 DX2 DX3 |
1号 2号 3号 |
|
-0.9~12bar; -10~+60℃ |
|
|
|
|
Pneumax |
ISO 5599 |
1号 2号 3号 |
90L/min、 1600L/min、 3600L/min |
2~l0bar |
|
|
|
|
SMC |
VP7-6 VP7-8 |
1号(Rc3/8) 2号(Rc¾) |
1600L/min、 3600L/min |
1.5~9bar; 5~+50℃ |
DC:12、24 AC:110、220 |
|
VS7-6、VS7-8为金属密封 |
|
表6 符合ISO 15407标准的电磁换向阀 |
||||||||
|
ISO 15407标准阀是具有气动底座的板式阀,板式连接有单个板接方式和集成板接两种(其主要连接的界面尺寸详见表方向控制阀的分类),有电控和气控两种控制方式,ISO 15407标准阀具内先导或外先导两种动作方式,有气弹簧复位功能或机械弹簧复位,下列图参照德国FESTOMN2H系列产品为例,主要技术参数见本表,单电控电磁阀,双电控电磁阀和三位五通电控电磁阀结构及尺寸参数见下表及表中图 不同系列的ISO阀的区别主要反映在功耗上、电插座尺寸上、电接口标准上(有的接口标准符合EN 175301-803、A型,有的采用圆形4针电插口M12×1等)、不同的工作电压、开关时间上。表7列出的是在板接连接界面上尺寸相同的气动厂商名单、产品型号 |
||||||||
|
主 要 技 术 参 数 |
ISO规格 |
02 |
01 |
|||||
|
阀功能 |
2个两位三通,单电控 |
|||||||
|
结构特点 |
滑阀 |
|||||||
|
密封原理 |
软性 |
|||||||
|
驱动方式 |
电 |
|||||||
|
复位方式 |
气弹簧 |
|||||||
|
先导控制方式 |
先导控制 |
|||||||
|
先导气源 |
内先导 |
|||||||
|
流动方向 |
单向 |
|||||||
|
排气功能 |
带流量控制 |
|||||||
|
手控装置 |
通过附件,锁定 |
|||||||
|
安装方式 |
通孔安装 |
|||||||
|
安装位置 |
任意位置 |
|||||||
|
公称通径/mm |
6 |
8 |
||||||
|
标准额定流量/L·min-1 |
440 |
950 |
||||||
|
阀位尺寸/mm |
19 |
27 |
||||||
|
气接口 |
1,2,3,4,5 |
G% |
G% |
|||||
|
12,14 |
M5 |
M5 |
||||||
|
产品质量/g |
210 |
320 |
||||||
|
排气噪声级/dB(A) |
75 |
|||||||
|
工 作 和 环 境 条 件 |
ISO规格 |
02 |
01 |
|||||
|
工作介质 |
过滤压缩空气,润滑或未润滑 真空 |
|||||||
|
工作压力/bar |
内先导气源 |
2~10 |
||||||
|
外先导气源 |
-0.9~10 |
-0.9~16 |
||||||
|
先导压力/bar |
2~10 |
|||||||
|
环境温度/℃ |
-10-+50 |
|||||||
|
介质温度/℃ |
-10-+50 |
|||||||
|
阀 的 响 应 时 间 /ms |
二位五通单电控 |
ISO规格 |
02 |
01 |
||||
|
复位方式 |
气 |
机械 |
气 |
机械 |
||||
|
开 |
23 |
18 |
31 |
24 |
||||
|
关 |
27 |
34 |
43 |
58 |
||||
|
二位五通双电控 |
ISO规格 |
02 |
01 |
|||||
|
|
|
14口为主控信号 |
|
14口为主控信号 |
||||
|
开/转换 |
— |
16 |
— |
16 |
||||
|
关/转换 |
16 |
16 |
18 |
18 |
||||
|
三位五通电控 |
ISO规格 |
02 |
01 |
|||||
|
中封式 |
开 |
17 |
23 |
|||||
|
关 |
22 |
52 |
||||||
|
中泄式 |
开 |
18 |
23 |
|||||
|
关 |
28 |
52 |
||||||
|
中压式 |
开 |
18 |
23 |
|||||
|
关 |
30 |
52 |
||||||
|
电 参 数 |
电接口结构 |
插头,方形结构,符合EN 175301-803标准,C型 |
||||||
|
中间插头,圆形结构,M12×1 |
||||||||
|
工作电压 |
直流电压/V |
12,14+10%/-15% |
||||||
|
交流电压/V |
24,110/230±10%(50~60Hz) |
|||||||
|
线圈特性 |
直流电压/W |
1.5 |
||||||
|
交流电/V·A |
开关:3 保持:2.4 |
|||||||
|
防护等级符合EN60529标准 |
IP65(与插座组合使用) |
|||||||
|
CE标志 |
符合EU指令73/23/EEC |
|||||||
|
表7 MN2H系列单、双电控及三位五通电控阀 |
|||||||||||||||||||||||||||||
|
MN2H 单电 控阀 的主 要界 面尺 寸 |
1—插座上的电缆接口符合EN175301-803标准,C型;2—手控装置;3—安装螺钉;4—标牌槽;5—标槽夹槽 mm |
||||||||||||||||||||||||||||
|
型号 |
B1 |
B2 |
D1 |
Hl |
H2 |
H3 |
H4 |
H5 |
L1 |
L2 |
L3 |
L6 |
|||||||||||||||||
|
ISO 规格02 |
MN2H-5/2 |
18 |
12.5 |
M3 |
92 |
59.5 |
34 |
5 |
39 |
95.5 |
85 |
42.5 |
70 |
||||||||||||||||
|
MN2H-5/2-FR |
107.5 |
97 |
|||||||||||||||||||||||||||
|
ISO 规格01 |
MN2H-5/2 |
26.2 |
19 |
M4 |
93 |
60.5 |
35 |
7 |
42 |
109 |
110 |
55 |
71 |
||||||||||||||||
|
MN2H-5/2-FR |
|||||||||||||||||||||||||||||
|
MN2H 双电 控阀 的主 要界 面尺 寸 |
1—插座上的电缆接口符合EN 175301-803标准,C型;2—手控装置;3—安装螺钉;4—标牌夹槽 |
||||||||||||||||||||||||||||
|
ISO规格 |
02 |
01 |
ISO规格 |
02 |
01 |
||||||||||||||||||||||||
|
B1 Be D1 H1 H2 H3 |
18 12.5 M3 92 59.5 34 |
26.2 19 M4 93 60.5 35 |
H4 L1 L2 L3
L6 |
5 106 85 42.5
70 |
7 108 110 55
71 |
||||||||||||||||||||||||
|
MN2H 三位 五通 电控 阀的 主要 界面 尺寸 |
1一插座上的电缆接口符合EN 175301-803标准,C型;2一手控装置;3一安装螺钉;4一标牌夹槽 mm |
||||||||||||||||||||||||||||
|
ISO规格 |
B1 |
B2 |
D1 |
H1 |
H2 |
H3 |
H4 |
L1 |
L2 |
L3 |
L6 |
||||||||||||||||||
|
02 01 |
18 26.2 |
12.5 19 |
M3 M4 |
92 93 |
59.5 60.5 |
34 35 |
5 7 |
106 108 |
97 124 |
42.5 55 |
70 71 |
||||||||||||||||||
|
表8 符合ISO 15407标准换向阀生产厂商名单 |
|||||||
|
厂商 |
型号 |
ISO 规格 |
接口尺寸/流量 |
压力/温度范围 |
电压/V |
电接口型式 |
备注 |
|
Festo |
MN2H |
02 01 |
G1/8:500L/min G¼:1000L/min |
-0.9~10bar; -10~50℃ |
DC:12、24 AC:24、110/230(50~60Hz) |
EN175301-803、C型,M12×1 |
|
|
MetalWork |
MACH18 |
02 |
470L/min |
-0.9~10bar; -10~+60℃ |
DC:24 AC:24、110、220 |
DIN43650C型 |
|
|
Norgren |
V41(橡胶密封)、V40(金属密封) |
02 |
570L/min、650L/min |
-0.9~16bar; -15~+50℃ |
DC:12、24 AC:24、48、110、115、230 |
DIN43650C型 |
V40工作温度为-15~+80℃ |
|
Numetics |
CL系列 |
|
680L/min、940L/min |
1.8~10bar; -20~+80℃ |
|
|
|
|
Parker |
DX02、DX01 |
02 01 |
G1/8:740L/min G¼:540L/min |
-0.9~10bar; -10~+60℃ |
DC:24 AC:110/50Hz |
DIN43650C型、M12 |
|
|
注:以上公司均以开头字母顺序排列。 |
|||||||







