|
UZ系列微型液压站 |
|
UZ系列微型液压站(以下简称UZ站),是由电动机泵组、油箱、液压阀集成块等组成的小型液压动力源。UZ站的电动机全部立式安装在油箱上。UZ站以各种功能螺纹插装阀为主体,兼用各种板式阀和叠加阀,结构紧凑、功能齐全。既有常规液压系统,也有比例和伺服液压系统。既有常规的测量显示仪表,也有压力、流量、油温、液位等传感器,输出模拟量或数字量信号,由智能控制器、单板机或微机实现高精度和远程监控。 UZ系列微型液压站由天津优瑞纳斯油缸有限公司生产 (1) 型号意义
标记示例优瑞纳斯微型液压站,额定压力10MPa,齿轮泵,额定流量36L/min、电动机功率7.5kW,油箱容积225L: UZ10C36/7.5×225 (2) 技术规格 |
|
表1 技术性能 |
||
|
工作压力/MPa |
0~31.5(连续增压器回路最高压力为200MPa) |
|
|
流量/L·min-1 |
0~100 |
|
|
泵装置 |
有齿轮泵、叶片泵、柱塞泵三种型式可供选择 |
|
|
电动机 |
功率/kW |
1.1~15(1.1、1.5、2.2、3、4、5.5、7.5、11、15) |
|
电源 |
三相380VAC,50Hz(单相交流电机、直流电机等需商定) |
|
|
油箱容积/L |
12~300(12、20、35、50、60、75、100、150、225、300) |
|
|
产品检验 |
液压泵站清洗组装完毕后,逐台严格按国标企标进行出厂试验,并提供出厂试验报告、产品合格证及使用维护说明 产品出厂清洁度(油液污染等级)9级(NAS1638)或18/15级(ISO4406) |
|
|
注:由于UZ站电机最大功率为15kW,因此系统额定压力和流量不能同时取较大值。即压力高时,流量值小;流量大时,压力值低。压力(MPa)×流量(L/min)应小于750 |
||
|
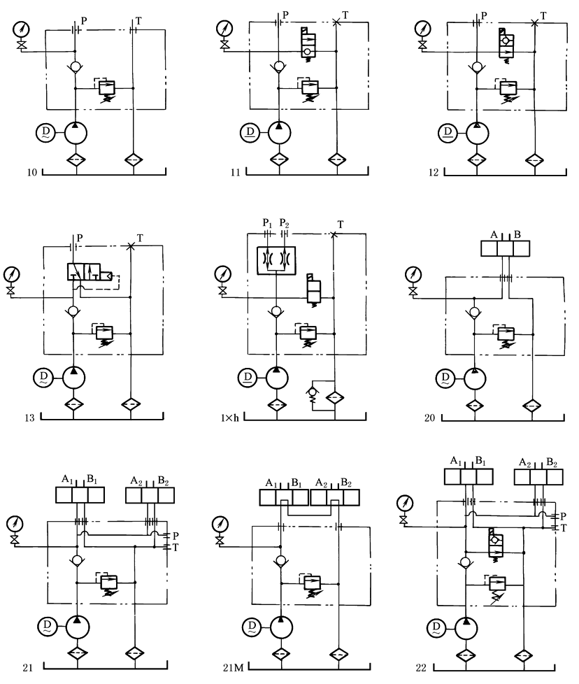
常用基本回路 |
|
注:1.1.1×h回路同步阀h可安装在11、12、13回路中,成为11h、12h或13h回路。 2.21、22回路可并联多个板式换向阀,不能选用M、H型机能阀。 3.20、21、21M、22回路各换向阀还可叠加各种功能阀。 4.将21M回路中的一个阀换成H型机能阀时,成为21MH回路,如两个阀都换成H型机能阀时,则成为21H回路。 5.回路工作原理参见UP液压动力包的表 |
|
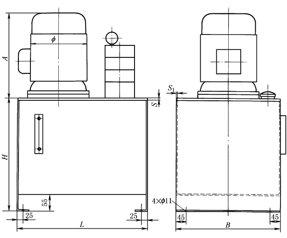
(3) 外形尺寸 |
|||||||||||||||||||
|
|
|||||||||||||||||||
|
表2 mm |
|||||||||||||||||||
|
油
箱 |
容积/L |
12 |
20 |
35 |
50 |
60 |
75 |
100 |
150 |
225 |
300 |
||||||||
|
L |
310 |
400 |
470 |
500 |
550 |
550 |
700 |
750 |
900 |
900 |
|||||||||
|
B |
310 |
310 |
310 |
400 |
400 |
400 |
400 |
500 |
600 |
700 |
|||||||||
|
H |
275 |
325 |
400 |
420 |
445 |
530 |
530 |
620 |
650 |
700 |
|||||||||
|
S1 |
2 |
3 |
4 |
||||||||||||||||
|
S |
6 |
8 |
|||||||||||||||||
|
电 动 机 |
功率/kW |
1.1 |
1.5 |
2.2 |
3 |
4 |
5.5 |
7.5 |
11 |
15 |
|||||||||
|
转速/r·min-1 |
1400 |
1420 |
1440 |
1450 |
1470 |
||||||||||||||
|
f |
195 |
220 |
240 |
275 |
335 |
||||||||||||||
|
A |
280 |
305 |
370 |
380 |
475 |
515 |
605 |
650 |
|||||||||||
|
UZ站的订货方法如下: ① 由用户提供液压原理图、技术参数和技术要求或由用户提供性能要求、工况条件,由天津优瑞纳斯油缸有限公司提供液压原理图; ② 由天津优瑞纳斯油缸有限公司根据液压原理图选择电动机、泵、阀、油箱等主要元件,经用户同意后设计制造 |



