|
液压泵站的分类及特点 |
||||||
|
液压泵站由泵组、油箱组件、滤油器组件、控温组件及蓄能器组件等组合而成。它是液压系统的动力源,可按机械设备工况需要的压力、流量和清洁度,提供工作介质。目前液压泵站产品尚未标准化,为获得一套性能良好的液压系统,建议主机厂委托液压专业厂设计、制造。一些研究单位和专业厂开发了BJHD系列、AB-C系列、UZ系列和UP系列产品,还有适用于中低压系统的YZ系列及EZ系列等产品均可供使用者选用 规模小的单机型液压泵站,通常将液压控制阀安装在油箱面板之上或集成在油路块上,再安装在油箱之上。中等规模的机组型液压泵站则将控制阀组安装于一个或几个阀台(架)上,阀台设置在被控设备(机构)附近。大规模的中央型液压泵站,往往设置在地下室内,可以对组成的各液压系统进行集中管理 |
||||||
|
泵组布置型式 |
液压泵站简图 |
特 点 |
适用功率范围 |
输出流量特性 |
||
|
整
体
型 |
上
置
式 |
立
式 |
|
电动机立式安装在油箱上,液压泵置于油箱之内 结构紧凑,占地小,噪声低 |
广泛应用于中、小功率液压泵站 油箱容量可达1000L |
均可制造成定量型或变量型(恒功率式、恒压式、恒流量式、限压式和压力切断式) |
|
卧
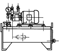
式 |
|
电动机卧式安装在油箱上,液压泵置于油箱之上,控制阀组也可置于油箱之上 结构紧凑,占地小 |
||||
|
非
上
置
式 |
旁 置 式 |
|
泵组(液压泵、电动机、联轴器、传动底座等)安装在油箱旁侧,与油箱共用同一个底座,泵站高度低,便于维修 |
传动功率较大 |
||
|
下 置 式 |
|
泵组安装在油箱之下,有效地改善液压泵的吸入性能 |
||||
|
柜
式 |
|
泵组和油箱置于封闭型柜体内,可以在柜体上布置仪表板和电控箱 外形整齐,尺寸较大,噪声低,受外界污染小 |
仅应用于中、小功率液压泵站 |
|||
|
微 型 液 压 动 力 包 |
|
采用螺纹插装阀块将电动机、泵、阀及油箱紧凑地连接在一起,体积小,重量轻 有卧式、立式和挂式三种安装方式。有多种控制回路 |
作为小型液压缸、液压马达的动力源 油箱容积3~30L |
定量型 |
||
|
分 离 型 |
非 上 置 式 |
旁 置 式 |
|
泵组和油箱组件分离,单独安装在地基上 改善液压泵的吸入性能,便于维修,占地大 |
传动功率大,油箱容量大 |
可制造成定量型或变量型(恒功率式、恒压式、恒流量式、限压式和压力切断式) |






