|
轧钢机机架形式与结构 |
|
轧钢机机架主要由上、下横梁及左右两立柱组成。在轧制过程中,金属作用于轧辊的全部压力和水平方向的张力、铸锭或板坯的惯性冲击以及轧辊平衡装置所产生的作用力,最后都为机架所承受。机架受力后产生的变形,将直接影响到板材和带材的轧制精度,因此,在设计中既要满足强度要求,又要保证足够的刚度 轧机机架的型式有闭口式和开口式两种。闭口式为一封闭的刚架,多用于初轧机、板轧机等。开口式机架的上盖可以拆卸,特别是中小型型钢轧机大多采用开口式机架。常用的开口式机架的型式见图1
图1 型钢轧机常用开口式机架的型式 机架立柱断面的形状一般采用抗弯能力较大的长方形或工字形(图2a、b),由于它们的刚度较大,最好用在较宽的机架上(如二辊轧机),尤其是受水平力很大的机架。在较宽的闭式机架上,这种断面也可以显著地减小横梁承受的弯曲力矩 在高且窄的机架(如四辊轧机)以及承受水平力不大的机架上,采用正方形(图2c)或长边较短的矩形断面,对于机架的强度和重量来讲是比较合理的,这种断面惯性矩较小,故作用于立柱全长上的弯曲力矩变小。由于立柱长度较大,因此立柱上所能节省的材料将超过横梁上稍增加的材料
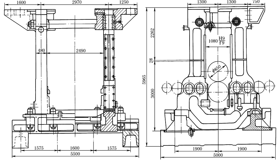
图2 机架立柱的各种断面 图3 工字形断面机架的滑板固定方式简图 从固定滑板的方式来看,采用工字形断面较方便,这时可以用螺栓把滑板固定在翼缘上(图3)。若采用矩形断面,则滑板必须用螺钉来固定,这时要在窗口表面加工螺孔,而加工螺孔较困难,更换滑板也较麻烦 设计机架应注意的其他问题,请参考专门文献 图4为2300型中板轧机的机架实例
图4 2300型中板粗轧机座工作机架 |




