|
导向杆和橡胶铰链 |
|
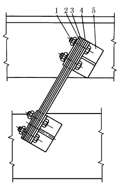
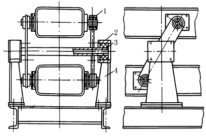
近共振类振动机主振系统采用的导向杆常见的有两种:一种是板弹簧导向杆(图1),可用弹簧钢板、酚醛压层板、竹片或优质木材等制成,多用于中小型振动机;另一种是橡胶铰链导向杆,多用于大中型振动机。图2是平衡式振动机的刚性导向杆,能承受较大负荷,在导向杆的两端和中间部位有三个孔,孔中装有如图3所示的橡胶铰链,橡胶铰链可以根据它所承受的扭矩和径向力按橡胶弹簧进行设计
图1 板弹簧的结构 1—紧固螺栓;2—压板;3—板弹簧;4—垫片;5—支座
图2 平衡式振动输送机的橡胶铰链式导向杆 1—两端橡胶铰链;2—滑块;3—中间橡胶铰链;4—支座
图3 橡胶铰链结构 1—橡胶圈;2—内环;3—外环 |



