|
LX19系列行程开关 |
||||||||||
|
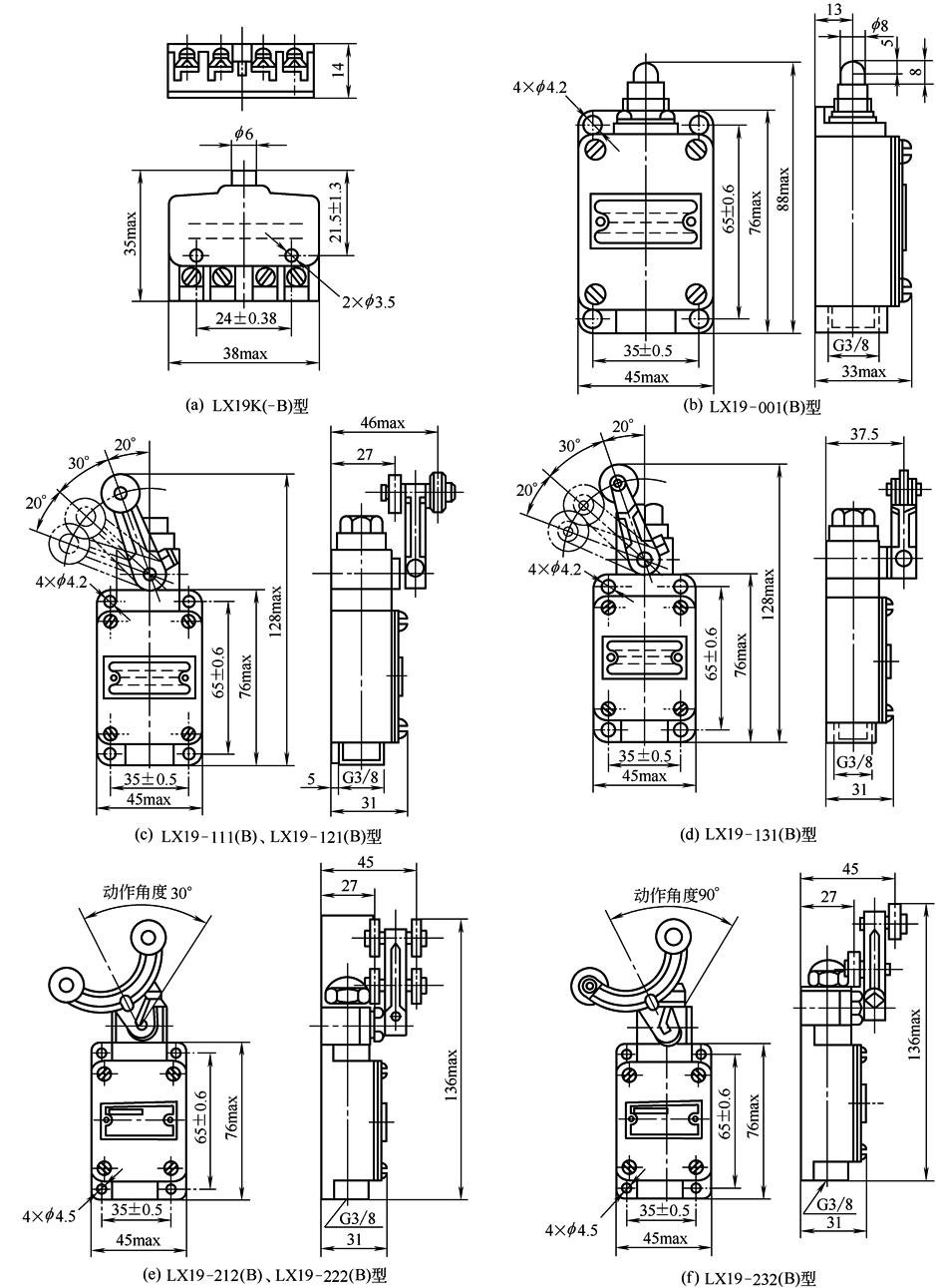
(1) 用途特点及工作条件 LX19系列行程开关适用于交流50Hz或60Hz、电压至380V,直流电压至220V的控制电路中,将机械信号转换为电气信号,作控制运动机构行程和变换运动方向或速度用 LX19系列行程开关采用双断点瞬动式结构,安装在金属外壳内构成防护式。在外壳上配有各种方式的机械部件,组成单轮、双轮转动及无轮直线移动等型式的行程开关 工作条件如下: 环境温度-25~40℃;最湿月平均最大相对湿度为90%,且该月的月平均最低温度为25℃;海拔不超过2500mm (2) 主要技术性能 LX19系列行程开关主要技术数据 |
||||||||||
|
型号 |
触头数量 |
额定电压/V |
额定工作电流/A |
约定发热 电流/A |
触头接触 时间/s |
动作力 /N |
动作行程/mm (或角度) |
|||
|
常开 |
常闭 |
交流 |
直流 |
交流 |
直流 |
|||||
|
LX19K(-B) |
1 |
1 |
380 |
220 |
0.8 |
0.1 |
5 |
0.04 |
<9.8 |
1.5~3.5 |
|
LX19-001(B) |
<14.7 |
1.5~3.5 |
||||||||
|
LX19-111(B) |
<19.6 |
≤30° |
||||||||
|
LX19-121(B) |
||||||||||
|
LX19-131(B) |
||||||||||
|
LX19-212(B) |
≤60° |
|||||||||
|
LX19-222(B) |
||||||||||
|
LX19-232(B) |
||||||||||
|
注:生产厂有北京第一机床电器厂。 (3) 型号含义
(4) 外形及安装尺寸 外形及安装尺寸见图
|
||||||||||


