|
磨床动静压支承润滑油箱(JB/T 8826—1998) |
|||||||||||||||||||
|
适用于供油流量2.5~100L/min、油箱容量10~500L、油液黏度2~68mm2/s的磨床动静压支承润滑油箱。其他机床用润滑油箱也可参照采用。油箱的型式分为普通型、精密(M)型、温控(K)型和精密温控(MK)型等。根据油箱的结构和使用特点,其安装形式可分为悬置式(代号1)和落地式(代号2)。 |
|||||||||||||||||||
|
表1 磨床动静压支承润滑油箱参数及性能要求 |
|||||||||||||||||||
|
参数 |
最大流量 /L·min-1 |
2.5 |
4 |
6 |
10 |
16 |
25 |
40 |
60 |
100 |
性 能 要 求 |
性能指标 |
1.标记示例: 油泵最大流量16L/min、油箱容量100L、油液过滤精度10μm的精密温控型悬置式润滑油箱,标记为 MJYMK1-16/100-10 JB/T 8826—1998 2.生产厂:太原市兴科机电研究所 |
||||||
|
油箱容量 /L |
10 |
|
|
|
|
|
|
|
|
供油压力 |
不小于95%额定压力 |
||||||||
|
16 |
16 |
|
|
|
|
|
|
|
供油流量① |
不小于95%额定流量 |
|||||||||
|
25 |
25 |
25 |
|
|
|
|
|
|
压力振摆 /MPa |
额定压力 |
|||||||||
|
|
40 |
40 |
40 |
|
|
|
|
|
≤2.5 |
>2.5~6.3 |
>6.3~10.0 |
||||||||
|
|
|
63 |
63 |
63 |
|
|
|
|
0.1 |
0.2 |
0.3 |
||||||||
|
|
|
|
100 |
100 |
100 |
|
|
|
耐压性 |
不小于150%额定压力 |
|||||||||
|
|
|
|
|
160 |
160 |
160 |
|
|
噪声 /dB(A) |
≤10 |
>10~35 |
>35~100 |
|||||||
|
|
|
|
|
250 |
250 |
250 |
250 |
|
≤70 |
≤72 |
≤75 |
||||||||
|
|
|
|
|
315 |
315 |
315 |
315 |
315 |
温升/℃ |
≤25 |
|||||||||
|
|
|
|
|
|
|
500 |
500 |
500 |
温度/℃ |
≤50 |
|||||||||
|
制冷电机功率/kW |
0.75、1.5、2.2 |
2.2、4.0、5.5 |
5.5、7.5、11 |
① 选用N32液压油,油温40℃时进行检测 |
|
||||||||||||||
|
额定压力 /MPa |
2.5、6.3、10 |
||||||||||||||||||
|
表2 悬置式和落地式油箱的布局形式和使用特点 |
|||||||||||||||||||
|
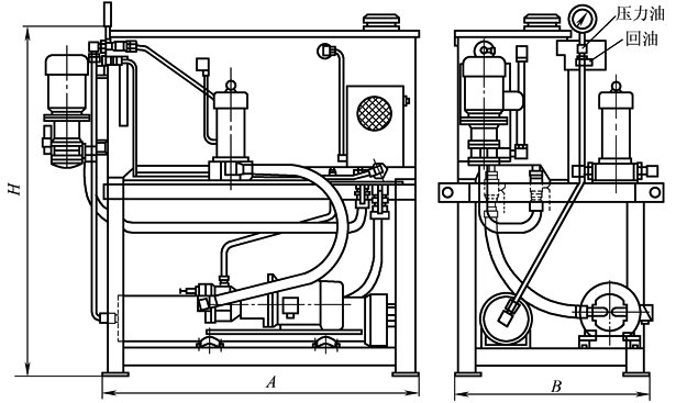
悬 置 式 润 滑 油 箱 |
|
适用于润滑油黏度较高的支承润滑系统,其油箱内油液液面高于油泵吸油口,油箱一般置于油泵装置上面或侧面,布局形式如图 |
|||||||||||||||||
|
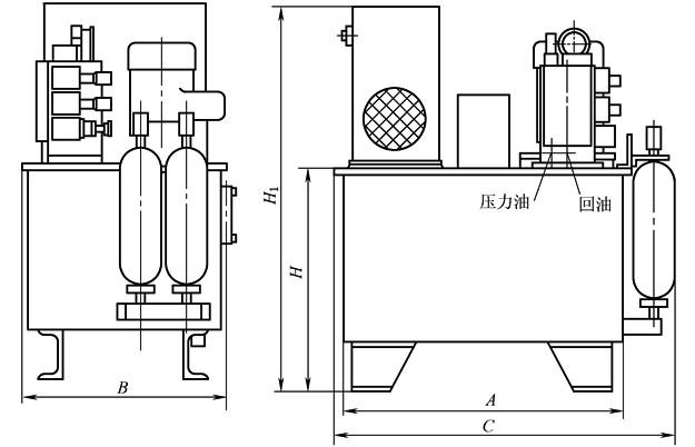
落 地 式 润 滑 油 箱 |
|
适用于润滑油黏度不高的支承润滑系统,其油箱内油液液面高于油泵吸油口,油箱一般置于地面上,油泵放在油箱上面,布局形式如图 |
|||||||||||||||||


