|
JZ型交流节能电磁铁块式制动器 |
||||||||||||||||||||||||||||
|
|
使用条件: 1.环境温度:-20~60℃。 2.交流380V/50Hz电源,电压允许波动上限不超过10%,下限不低于额定电压15%。 3.作用地点的海拔高度不超过2000m。 4.使用地点空气相对湿度不大于90%。 5.制动器周围不得有易燃易爆及足以腐蚀金属和破坏绝缘的气体和导电尘埃。
|
|||||||||||||||||||||||||||
|
型号 |
制动轮 直径 /mm |
制动力矩 /N·m |
退 距 /mm |
质 量 /kg |
配 用 电 磁 铁 |
总质量 /kg |
||||||||||||||||||||||
|
型 号 |
额定推力 /N |
行 程 /mm |
操作频率 /(次·h-1) |
电 流 /A |
质 量 /kg |
|||||||||||||||||||||||
|
初始 |
最大 |
启动 |
工作 |
|||||||||||||||||||||||||
|
JZ-100 |
100 |
20 |
0.5 |
12.5 |
MZD JZ-100 |
320 |
3 |
5 |
1200 |
3 |
0.020 |
3.5 |
16 |
|||||||||||||||
|
JZ-200 |
200 |
160 |
0.6 |
19 |
MZD JZ-200 |
1600 |
3 |
7 |
1200 |
3 |
0.020 |
7 |
26 |
|||||||||||||||
|
JZ-300 |
300 |
500 |
0.8 |
52 |
MZD JZ-300 |
3150 |
3.5 |
7 |
1200 |
4 |
0.020 |
12 |
64 |
|||||||||||||||
|
JZ-400 |
400 |
1250 |
0.8 |
100 |
MZD JZ-400 |
6300 |
4.5 |
8 |
900 |
6 |
0.025 |
17 |
117 |
|||||||||||||||
|
JZ-500 |
500 |
2500 |
0.8 |
167 |
MZD JZ-500 |
10000 |
5 |
9 |
900 |
8 |
0.030 |
33 |
200 |
|||||||||||||||
|
JZ-600 |
600 |
5000 |
1.0 |
345 |
MZD JZ-600 |
16000 |
5 |
9 |
600 |
10 |
0.040 |
72 |
417 |
|||||||||||||||
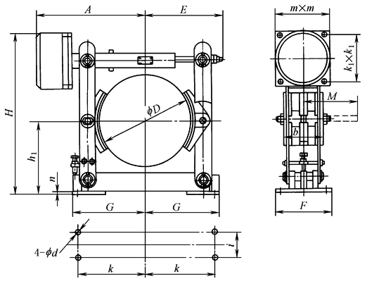
|
型号 |
基 本 尺 寸 /mm |
|||||||||||||||||||||||||||
|
A |
b |
D |
d |
E |
F |
G |
H |
h1 |
i |
k |
k1 |
M |
m |
n |
||||||||||||||
|
JZ-100 |
200 |
70 |
100 |
13 |
140 |
75 |
125 |
300 |
100 |
40 |
110 |
78 |
110 |
100 |
6 |
|||||||||||||
|
JZ-200 |
270 |
80 |
200 |
17 |
215 |
100 |
208 |
435 |
170 |
60 |
175~190 |
105~110 |
126 |
145 |
8 |
|||||||||||||
|
JZ-300 |
350 |
140 |
300 |
22 |
295 |
130 |
290 |
600 |
240 |
80 |
250~270 |
125 |
160 |
155 |
10 |
|||||||||||||
|
JZ-400 |
465 |
180 |
400 |
22 |
350 |
180 |
350 |
765 |
320 |
130 |
325 |
170 |
210 |
200 |
12 |
|||||||||||||
|
JZ-500 |
565 |
200 |
500 |
22 |
490 |
200 |
405 |
950 |
400 |
150 |
380 |
200 |
250 |
230 |
16 |
|||||||||||||
|
JZ-600 |
675 |
240 |
600 |
26 |
560 |
220 |
500 |
1160 |
475 |
170 |
475 |
230 |
305 |
270 |
18 |
|||||||||||||
|
注:1.资料来自焦作制动器有限公司的样本。 2.安装尺寸符合JB/ZQ 4388—1997标准。 |
||||||||||||||||||||||||||||


