|
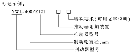
YWL系列立式电力液压块式制动器 |
||||||||||||||||||||
|
|
使用条件:一般同YW系列制动器,具体要求应与厂家联系。
|
|||||||||||||||||||
|
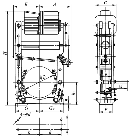
技术参数与尺寸 |
||||||||||||||||||||
|
制动器型号 |
匹配推动器 |
制动转矩 /N·m |
退距 /mm |
A |
b |
C |
D |
d |
E |
F |
G1 |
G2 |
H |
h1 |
i |
k |
M |
n |
质量 /kg |
|
|
YWL-200/E23 |
Ed23/5 |
210 |
0.8 |
255 |
70 |
160 |
200 |
14 |
171 |
105 |
180 |
180 |
710 |
160 |
55 |
145 |
165 |
8 |
46 |
|
|
YWL-200/E30 |
Ed30/5 |
300 |
255 |
171 |
707 |
52 |
||||||||||||||
|
YWL-250/E23 |
Ed23/5 |
260 |
0.8 |
320 |
90 |
160 |
250 |
18 |
200 |
115 |
205 |
205 |
801 |
190 |
65 |
180 |
225 |
10 |
53 |
|
|
YWL-250/E30 |
Ed30/5 |
380 |
315 |
200 |
798 |
61 |
||||||||||||||
|
YWL-250/E50 |
Ed50/6 |
700 |
320 |
195 |
200 |
861 |
69 |
|||||||||||||
|
YWL-315/E23 |
Ed23/5 |
290 |
1.1 |
322 |
110 |
160 |
315 |
18 |
247 |
135 |
245 |
245 |
891 |
230 |
80 |
220 |
255 |
15 |
72 |
|
|
YWL-315/E30 |
Ed30/5 |
410 |
322 |
247 |
888 |
78 |
||||||||||||||
|
YWL-315/E50 |
Ed50/6 |
720 |
322 |
195 |
247 |
946 |
81 |
|||||||||||||
|
YWL-315/E80 |
Ed80/6 |
1100 |
322 |
247 |
92 |
|||||||||||||||
|
YWL-400/E30 |
Ed30/5 |
390 |
1.25 |
370 |
140 |
160 |
400 |
18 |
304 |
155 |
310 |
310 |
960 |
280 |
100 |
270 |
280 |
12 |
98 |
|
|
YWL-400/E50 |
Ed50/6 |
750 |
430 |
195 |
304 |
1073 |
102 |
|||||||||||||
|
YWL-400/E80 |
Ed80/6 |
1250 |
430 |
304 |
114 |
|||||||||||||||
|
YWL-400/E121 |
Ed121/6 |
1900 |
430 |
240 |
304 |
1064 |
132 |
|||||||||||||
|
YWL-500/E50 |
Ed50/6 |
890 |
1.25 |
440 |
180 |
195 |
500 |
22 |
368 |
195 |
365 |
365 |
1234 |
340 |
130 |
325 |
350 |
21 |
154 |
|
|
YWL-500/E80 |
Ed80/6 |
1600 |
440 |
368 |
159 |
|||||||||||||||
|
YWL-500/E121 |
Ed121/6 |
2300 |
440 |
240 |
368 |
1225 |
176 |
|||||||||||||
|
YWL-500/E201 |
Ed201/6 |
4100 |
440 |
368 |
181 |
|||||||||||||||
|
注:1.本制动器系焦作制动器有限公司生产,符合德国标准DIN 15435。 2.江西华伍起重电气有限公司生产的型号为YWH系列,符合JB/T 6406.1、JB/T 6406.2及DIN 15435标准。各生产厂家产品的安装尺寸相同,外形尺寸不完全相同,表中数据选自焦作制动器有限公司产品样本。 |
||||||||||||||||||||


