|
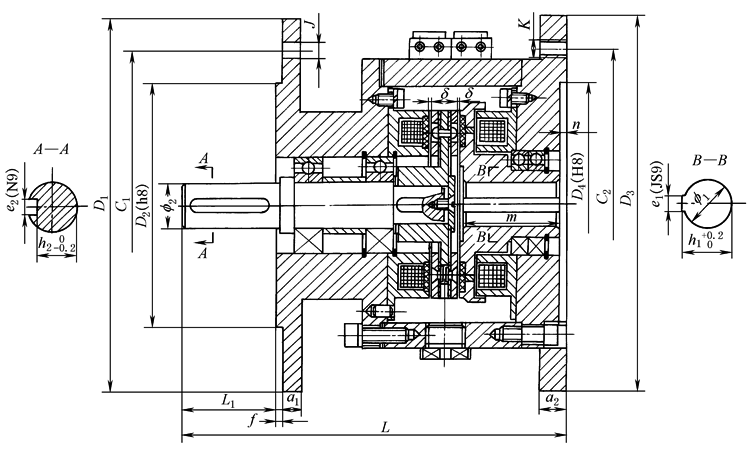
DLZ6系列电磁离合制动器 |
||||||||||||||||||||||||||||
|
|
||||||||||||||||||||||||||||
|
规 格 |
额定动转矩/N·m |
静转矩/N·m |
额定电压 (DC)/V |
线圈消耗功率(20℃)/W |
允许最高转速 /r·min-1 |
|||||||||||||||||||||||
|
离合器 |
制动器 |
离合器 |
制动器 |
离合器 |
制动器 |
|||||||||||||||||||||||
|
2 |
20 |
20 |
22 |
22 |
24 |
20 |
20 |
4000 |
||||||||||||||||||||
|
4 |
40 |
40 |
45 |
45 |
25 |
25 |
4000 |
|||||||||||||||||||||
|
8 |
80 |
80 |
90 |
90 |
36 |
38 |
3000 |
|||||||||||||||||||||
|
规 格 |
D1 |
D2 |
D3 |
D4 |
C1 |
C2 |
J |
K |
L |
L1 |
f |
a1 |
a2 |
m |
n |
f1 |
h1 |
e1 |
f2 |
h2 |
e2 |
δ |
||||||
|
/mm |
||||||||||||||||||||||||||||
|
2 |
200 |
130 |
200 |
130 |
165 |
165 |
4-f11 |
4-M10 |
217.5 |
50 |
3.5 |
10 |
14 |
52 |
4 |
24H7 |
27.3 |
8 |
24h6 |
20 |
8 |
0.2 |
||||||
|
4 |
250 |
180 |
250 |
180 |
215 |
215 |
4-f15 |
4-M12 |
257 |
60 |
4 |
15 |
20 |
65 |
5 |
28H8 |
31.3 |
8 |
28h7 |
24 |
8 |
0.3 |
||||||
|
8 |
250 |
180 |
250 |
180 |
215 |
215 |
4-f15 |
4-M12 |
292 |
60 |
4 |
20 |
25 |
59.5 |
5 |
28H8 |
31.3 |
8 |
28h7 |
24 |
8 |
0.4 |
||||||
|
注:生产厂家为天津机床电器有限公司。 |
||||||||||||||||||||||||||||

