|
DLZ2系列电磁离合制动器 |
|||||||||||||
|
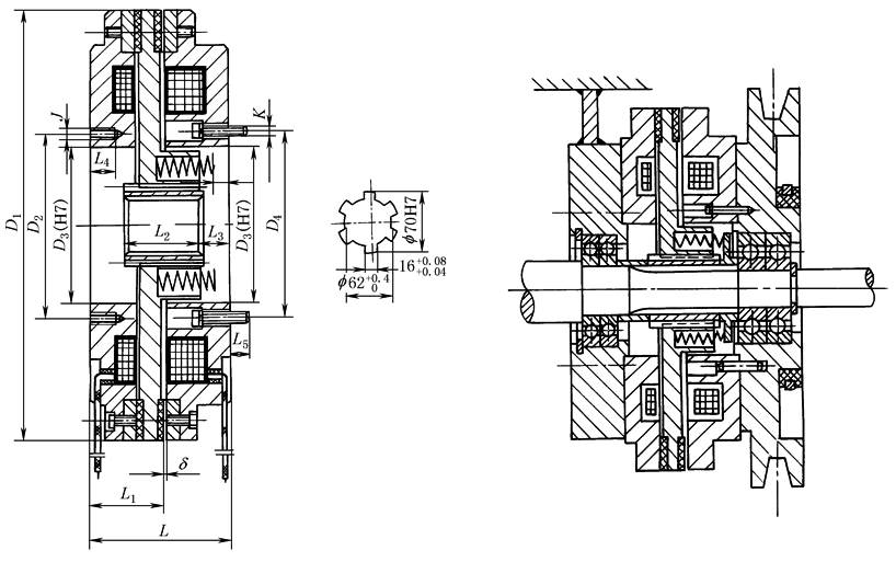
安装示例 |
|||||||||||||
|
规 格 |
额定动转矩/N·m |
静转矩/N·m |
额定电压 (DC)/V |
线圈消耗功率(20℃)/W |
允许最高转速 /r·min-1 |
||||||||
|
离合器 |
制动器 |
离合器 |
制动器 |
离合器 |
制动器 |
||||||||
|
120 |
1200 |
400 |
1320 |
440 |
24 |
125 |
195 |
1500 |
|||||
|
180 |
1800 |
800 |
1980 |
880 |
24 |
200 |
120 |
1200 |
|||||
|
规 格 |
D1 |
D2 |
D3 |
D4 |
J |
K |
L |
L1 |
L2 |
L3 |
L4 |
L5 |
δ |
|
mm |
|||||||||||||
|
120 |
420 |
205 |
176 |
205 |
4-M12 |
6-M10 |
152.5 |
77 |
70 |
38 |
25 |
20 |
0.8 |
|
180 |
500 |
205 |
180 |
220 |
8-M12 |
8-M20 |
183.8 |
88 |
70 |
61 |
25 |
35 |
0.8 |
|
注:生产厂家为天津机床电器有限公司。 |
|||||||||||||

