|
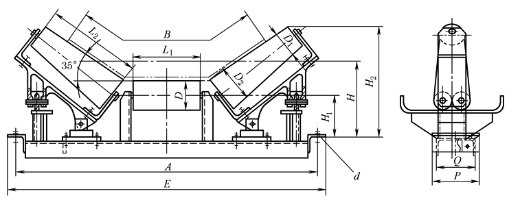
锥形上调心托辊 mm |
|||||||||||||||||
|
|
|||||||||||||||||
|
带宽 B |
辊 子 |
D1 |
D2 |
L2 |
A |
E |
H |
H1 |
H2 |
P |
Q |
d |
质量 /kg |
图 号 |
|||
|
D |
L1 |
图号 |
轴承型号 |
||||||||||||||
|
800 |
108 |
250 |
G403 |
6205/C4 |
89 |
133 |
340 |
1090 |
1150 |
270 |
146 |
395 |
170 |
130 |
M12 |
70.9 |
80C414Z |
|
133 |
G503 |
6305/C4 |
108 |
159 |
296 |
159.6 |
422 |
— |
— |
— |
71.1 |
80C514Z |
|||||
|
1000 |
315 |
G504 |
415 |
1290 |
1350 |
325 |
173.5 |
478 |
220 |
170 |
M16 |
72.9 |
100C514Z |
||||
|
159 |
G604 |
6306/C4 |
355 |
190.5 |
508 |
91.5 |
100C614Z |
||||||||||
|
1200 |
133 |
380 |
G505 |
6305/C4 |
176 |
500 |
1540 |
1600 |
360 |
548 |
260 |
200 |
105.5 |
120C514Z |
|||
|
159 |
G605 |
6306/C4 |
133 |
194 |
390 |
207.5 |
578 |
109.4 |
120C614Z |
||||||||
|
1400 |
133 |
465 |
G506 |
6305/C4 |
108 |
176 |
550 |
1740 |
1800 |
380 |
198.5 |
584 |
280 |
220 |
99.7 |
140C514Z |
|
|
159 |
G606 |
6306/C4 |
133 |
194 |
410 |
215.5 |
615 |
110.0 |
140C614Z |
||||||||
|
注:与中间架连接的紧固件包括在本部件内。 |
|||||||||||||||||

