|
滚动直线导轨副主要类型及参数 (参数标准引自JB/T 7175.2—2006) |
|||
|
名 称 |
结 构 简 图 |
特点及适用场合、标准参数 |
主要厂家及牌号 |
|
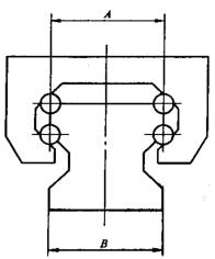
四滚道型 |
|
轨道两侧各有互成45°的两列承载滚珠。垂直向上、下和左右水平额定载荷相同。额定载荷大,刚性好,可承受冲击及重载,用途较广,如加工中心、数控机床、机器人、机械手、焊接机、包装机、木工机械、传输生产线等。A为标准参数(也为型号代码):20、25、30、35、40、45、50、55、65、85、100、120;B导轨宽度:15、20、23、28、34、40、45、50、53、63、85、100、120 |
南京GGB型、上海SGA型、济宁JSA型 |
|
两滚道型(双边单列) |
|
轨道两侧各有一列承载滚珠。结构轻、薄、短小,且调整方便,可承受上下左右的载荷及不大的力矩,是集成电路片传输装置、医疗设备、办公自动化设备、机器人等的常用导轨。A为标准参数(也为型号代码):7、9、12、15、20、25(有普通系列及加宽系列);B导轨宽度:7、9、12、15、20、23 |
南京GGC、GGE型,上海SGC型 |
|
分离型(单边双列) |
|
两列滚珠与运动平面均成45°接触,因此同一平面只要安装一组导轨,就可以上下左右均匀地承载。若采用两组平行导轨,上下左右可承受同一额定载荷,间隙调整方便,广泛用于电加工机床、精密工作台等电子机械设备(参数尚未标准化) |
南京GGF型、上海SGB型及SGVB型 |
|
交叉圆柱滚子V形直线导轨副 |
1—滑块;2—导轨 |
采用圆柱滚子代替滚珠,且相邻滚子安装位置交错90°,采用V形导轨,其接触面长为原来的1.7倍,刚性为2倍,寿命为6倍;适用于轻、重载荷,无间隙,运动平稳无冲击的场合,如精密内外圆磨床、电子计算机、电加工机床、测量仪器、医疗器械、木工机械等 |
上海SGV型 南京GZV型 |
|
注:生产厂上海中恒导轨有限公司(原上海组合夹具厂)、南京工艺装备制造厂、山东济宁博特滚动导轨公司。 |
|||





