|
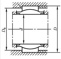
EW(宽内圈)系列向心关节轴承安装尺寸 mm |
|||||||||||||
|
GEEW…ES型 GEEW…ES-2RS型 |
|||||||||||||
|
轴承公称直径 |
Da |
Db |
rb |
轴承公称直径 |
Da |
Db |
rb |
||||||
|
d |
D |
max |
min |
max |
min |
max |
d |
D |
max |
min |
max |
min |
max |
|
12 15 16 17 20 25
30 32 35 |
22 26 28 30 35 42
47 52 55 |
19 23 25 27 31 38
43 47 50 |
18 21 23 24 28 33
38 41 44 |
19 23 25 27 31 38
43 47 50 |
17 22 24 25 30 36
40 44 47 |
0.3 0.3 0.3 0.3 0.3 0.3
0.6 1.0 1.0 |
40 45 50
60 63 70
80 100 |
62 68 75
90 95 105
120 150 |
57 63 70
84 89 99
114 144 |
50 56 61
73 76 84
97 120 |
57 63 70
84 89 99
114 144 |
53 59 64
77 81 89
102 127 |
1.0 1.0 1.0
1.0 1.0 1.0
1.0 1.0 |


