|
伺服比例阀产品特性和典型结构示例 |
||||||||||
|
型式 |
直动式 |
先导式 |
三通插装式 |
|||||||
|
通径/mm |
NG6 |
NG10 |
10、16、25、32 |
25、32、50 |
||||||
|
最高工作压力pmax/MPa |
31.5 |
31.5 |
35 |
31.5 |
||||||
|
单阀口压降Δp/MPa |
3.5 |
3.5 |
0.5 |
0.5 |
||||||
|
名义流量qV/L·min-1 |
4,12,24,40 |
50,100 |
50,75,120/200,370,1000 |
60/150,300,600 |
||||||
|
频响(±5%额定值)/Hz |
120 |
60 |
70,60,50,30 |
80,70,45 |
||||||
|
响应时间(信号变化0~100%)/ms |
<10 |
<25 |
pX=10MPa时,25、28、45、130;pX=1MPa时,85、95、150、500(pX为控制压力) |
pX=10MPa时,33、28、60 |
||||||
|
滞环/% |
0.2 |
0.2 |
<0.1 |
0.1 |
||||||
|
压力增益/% |
≈2 |
≈2 |
<1.5 |
1 |
||||||
|
线圈电流/A |
2.7 |
3.7 |
2.7 |
|
||||||
|
温漂(ΔT=72°F)/% |
<1 |
<1 |
<1 |
<1 |
||||||
|
型式、典型结构及基本特点 |
||||||||||
|
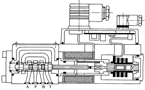
直 动 式 |
|
|||||||||
|
符号 |
1线性 |
2非线性60% |
3非线性40% |
|||||||
|
|
|
|
|
|||||||
|
4非线性60%+2∶1(A∶B) |
||||||||||
|
(a) (1)可单独作为控制器件(阀),也可作为所有先导式伺服比例阀的先导级;(2)阀体配置钢质阀套,确保耐磨和精确的零遮盖;(3)配用位置调节型比例电磁铁,可以无级地在所有中间点达到很小的滞环;(4)电磁铁失电时,阀处于附加的第4位,即安全位;(5)特性曲线参见表伺服比例阀中图2 |
||||||||||
|
|
||||||||||
|
符号 |
1线性 |
2非线性40% |
||||||||
|
|
|
|
||||||||
|
3非线性40%+2∶1(A∶B) |
||||||||||
|
(b) (1)除了不作多级阀的先导级外,基本与6通径相同;(2)频率响应相差较大 |
||||||||||
|
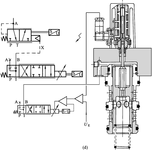
先 导 式 |
|
|||||||||
|
符号 |
1标准 |
2非线性40% |
||||||||
|
|
|
|
||||||||
|
3流量增益变化40%+2∶1(A∶B) |
||||||||||
|
(c) (1)基本结构与一般比例阀相似,先导级用本表6通径伺服比例阀;(2)主级位移用另一个位移传感器检测,主级与先导级两个闭环回路叠加;(3)与比例阀具有正遮盖不同,主级中位时为零遮盖,并用耐磨的控制阀口(壳体用球墨铸铁)来保证 |
||||||||||
|
插 装 式 |
(1)先导级用外置的6通径伺服比例阀;(2)主阀为三通插装式结构,两个位置闭环回路叠加;(3)安装于朝着负载运动方向上的力和位置调节闭环上 |
|||||||||














