|
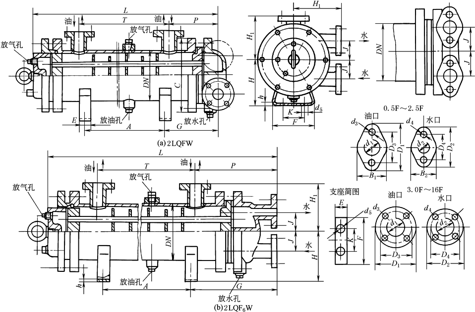
卧式浮头式冷却器 |
|||||||||||||||||||||||
|
① 卧式浮头式冷却器 2LQFW型、2LQF6W型冷却器尺寸
|
|||||||||||||||||||||||
|
表1 mm |
|||||||||||||||||||||||
|
型 号 |
A0.5F |
A0.65F |
0.8F |
A1.0F |
A1.2F |
A1.46F |
A1.7F |
A2.1F |
A2.5F |
A3.0F |
A3.6F |
A4.3F |
F5.0F |
A6.0F |
A7.2F |
A8.5F |
A10F |
A12F |
A14F |
A16F |
|||
|
换热面积/m2 |
0.5 |
0.65 |
0.8 |
1.0 |
1.2 |
1.46 |
1.7 |
2.1 |
2.5 |
3.0 |
3.6 |
4.3 |
5.0 |
6.0 |
7.2 |
8.5 |
10 |
12 |
14 |
16 |
|||
|
底 部 尺 寸 |
(a) 2LQFW、 (b) 2LQF6W |
A |
345 |
470 |
595 |
440 |
565 |
690 |
460 |
610 |
760 |
540 |
665 |
815 |
540 |
690 |
865 |
575 |
700 |
875 |
875 |
875 |
|
|
K |
90 |
90 |
90 |
104 |
104 |
104 |
120 |
120 |
120 |
140 |
140 |
140 |
170 |
170 |
170 |
230 |
230 |
230 |
230 |
230 |
|||
|
h |
5 |
5 |
5 |
5 |
5 |
5 |
5 |
5 |
5 |
5 |
5 |
5 |
5 |
5 |
5 |
6 |
6 |
6 |
6 |
6 |
|||
|
E |
40 |
40 |
40 |
45 |
45 |
45 |
50 |
50 |
50 |
55 |
55 |
55 |
60 |
60 |
60 |
65 |
65 |
65 |
65 |
65 |
|||
|
F |
140 |
140 |
140 |
160 |
160 |
160 |
180 |
180 |
180 |
210 |
210 |
210 |
250 |
250 |
250 |
320 |
320 |
320 |
320 |
320 |
|||
|
d5 |
11 |
11 |
11 |
14 |
14 |
14 |
14 |
14 |
14 |
14 |
14 |
14 |
14 |
14 |
14 |
18 |
18 |
18 |
18 |
18 |
|||
|
筒 部 尺 寸 |
(a)、 (b) |
DN |
114 |
114 |
114 |
150 |
150 |
150 |
186 |
186 |
186 |
219 |
219 |
219 |
245 |
245 |
245 |
325 |
325 |
325 |
325 |
325 |
|
|
H |
115 |
115 |
115 |
140 |
140 |
140 |
165 |
165 |
165 |
200 |
200 |
200 |
240 |
240 |
240 |
280 |
280 |
280 |
280 |
280 |
|||
|
J |
42 |
45 |
42 |
47 |
47 |
47 |
52 |
52 |
52 |
85 |
85 |
85 |
95 |
95 |
95 |
105 |
105 |
105 |
105 |
105 |
|||
|
H1 |
95 |
95 |
95 |
115 |
115 |
115 |
140 |
140 |
140 |
200 |
200 |
200 |
240 |
240 |
240 |
280 |
280 |
280 |
280 |
280 |
|||
|
L |
545 |
670 |
790 |
680 |
805 |
930 |
740 |
890 |
1040 |
870 |
995 |
1145 |
920 |
1070 |
1245 |
1000 |
1125 |
1300 |
1300 |
1300 |
|||
|
G |
100 |
100 |
100 |
115 |
115 |
115 |
140 |
140 |
140 |
175 |
175 |
175 |
205 |
205 |
205 |
220 |
220 |
220 |
220 |
220 |
|||
|
P |
93 |
93 |
93 |
105 |
105 |
105 |
120 |
120 |
120 |
170 |
170 |
170 |
190 |
190 |
190 |
210 |
210 |
210 |
210 |
210 |
|||
|
T |
357 |
482 |
607 |
460 |
585 |
710 |
500 |
650 |
800 |
565 |
690 |
840 |
570 |
720 |
895 |
590 |
715 |
890 |
890 |
890 |
|||
|
C |
186 |
186 |
186 |
220 |
220 |
220 |
270 |
270 |
270 |
308 |
308 |
308 |
340 |
340 |
340 |
406 |
406 |
406 |
406 |
406 |
|||
|
L |
614 |
739 |
859 |
762 |
887 |
1012 |
846 |
996 |
1146 |
965 |
1090 |
1240 |
1022 |
1172 |
1347 |
1112 |
1237 |
1412 |
1412 |
1412 |
|||
|
G |
169 |
169 |
169 |
197 |
197 |
197 |
246 |
246 |
246 |
270 |
270 |
270 |
307 |
307 |
307 |
332 |
332 |
332 |
332 |
332 |
|||
|
P |
162 |
162 |
162 |
190 |
190 |
190 |
226 |
226 |
226 |
265 |
265 |
265 |
292 |
292 |
292 |
322 |
322 |
322 |
322 |
322 |
|||
|
T |
357 |
482 |
607 |
460 |
585 |
710 |
500 |
650 |
800 |
565 |
690 |
840 |
570 |
720 |
895 |
590 |
715 |
890 |
890 |
890 |
|||
|
法兰型式 |
椭 圆 法 兰 |
圆 形 法 兰 |
|||||||||||||||||||||
|
法 兰 尺 寸 |
油 |
(a)、 (b) |
d1 |
25 |
25 |
25 |
32 |
32 |
32 |
40 |
40 |
40 |
50 |
50 |
50 |
65 |
65 |
65 |
80 |
80 |
80 |
80 |
80 |
|
D1 |
90 |
90 |
90 |
100 |
100 |
100 |
118 |
118 |
118 |
160 |
160 |
160 |
180 |
180 |
180 |
195 |
195 |
195 |
195 |
195 |
|||
|
B1 |
64 |
64 |
64 |
72 |
72 |
72 |
85 |
85 |
85 |
|
|
|
|
|
|
|
|
|
|
|
|||
|
D3 |
65 |
65 |
65 |
75 |
75 |
75 |
90 |
90 |
90 |
125 |
125 |
125 |
145 |
145 |
145 |
160 |
160 |
160 |
160 |
160 |
|||
|
d3 |
11 |
11 |
11 |
11 |
11 |
11 |
14 |
14 |
14 |
18 |
18 |
18 |
18 |
18 |
18 |
8× f18 |
8× f18 |
8× f18 |
8× f18 |
8× f18 |
|||
|
水 |
d2 |
20 |
20 |
20 |
25 |
25 |
25 |
32 |
32 |
32 |
40 |
40 |
40 |
50 |
50 |
50 |
65 |
65 |
65 |
65 |
65 |
||
|
D2 |
80 |
80 |
80 |
90 |
90 |
90 |
100 |
100 |
100 |
145 |
145 |
145 |
160 |
160 |
160 |
180 |
180 |
180 |
180 |
180 |
|||
|
B2 |
45 |
45 |
45 |
64 |
64 |
64 |
72 |
72 |
72 |
|
|
|
|
|
|
|
|
|
|
|
|||
|
D4 |
55 |
55 |
55 |
65 |
65 |
65 |
75 |
75 |
75 |
110 |
110 |
110 |
125 |
125 |
125 |
145 |
145 |
145 |
145 |
145 |
|||
|
d4 |
11 |
11 |
11 |
11 |
11 |
11 |
11 |
11 |
11 |
18 |
18 |
18 |
18 |
18 |
18 |
18 |
18 |
18 |
18 |
18 |
|||
|
(a)、(b)质量/kg |
30 |
33 |
36 |
47 |
51 |
54 |
60 |
70 |
76 |
110 |
119 |
130 |
145 |
161 |
176 |
215 |
231 |
250 |
260 |
270 |
|||
|
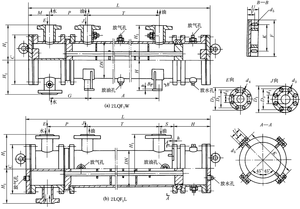
2LQF1W型、2LQF1L型冷却器尺寸 |
||||||||||||||||||||||||||||
|
|
||||||||||||||||||||||||||||
|
表2 mm |
||||||||||||||||||||||||||||
|
(a)2LQF1W (b)2LQF1L |
(a)2LQF1W |
|||||||||||||||||||||||||||
|
型 号 |
换热 面积 /m2 |
DN |
D1 |
d3 |
d2 |
D2 |
d4 |
T |
质量 /kg |
H1 |
V |
K |
长形孔 d5 |
h |
M |
A |
||||||||||||
|
C |
D3 |
|
D4 |
L |
H |
U |
F |
d1 |
P |
G |
||||||||||||||||||
|
10/19F |
19 |
273 360 |
280 240 |
8× f 23 |
80
|
195 160 |
8× f 18 |
2690 3460 |
578 |
248 190 |
35 60 |
140 200 |
4× 16×22 |
10 150 |
140 290 |
2690 240 |
||||||||||||
|
10/25F |
25 |
325 415 |
280 240 |
8× f 23 |
80
|
195 160 |
8× f 18 |
2690 3470 |
746 |
280 216 |
35 60 |
165 230 |
4× 16×32 |
10 150 |
145 292 |
2690 240 |
||||||||||||
|
10/29F |
29 |
351 445 |
280 240 |
8× f 23 |
100
|
215 180 |
8× f 18 |
2690 3510 |
883 |
298 268 |
50 85 |
190 250 |
4× 16×32 |
10 150 |
160 310 |
2670 280 |
||||||||||||
|
10/36F |
36 |
402 495 |
280 240 |
8× f 23 |
100
|
215 180 |
8× f 18 |
2680 3520 |
1054 |
324 292 |
50 85 |
215 270 |
4× 19×32 |
10 150 |
165 320 |
2640 285 |
||||||||||||
|
10/45F |
45 |
450 550 |
280 240 |
8× f 23 |
150
|
280 240 |
8× f 23 |
2680 3580 |
1458 |
350 305 |
50 85 |
240 300 |
4× 19×32 |
10 150 |
190 345 |
2670 310 |
||||||||||||
|
10/55F |
55 |
500 600 |
335 295 |
12× f 23 |
150
|
280 240 |
8× f 23 |
2615 3630 |
1553 |
375 330 |
70 100 |
265 325 |
4× 19×32 |
14 200 |
195 385 |
2590 345 |
||||||||||||
|
10/68F |
68 |
560 655 |
335 295 |
12× f 23 |
150
|
280 240 |
8× f 23 |
2600 3640 |
2140 |
405 348 |
70 100 |
345 400 |
4× 19×32 |
14 200 |
200 390 |
2590 350 |
||||||||||||
|
10/77F |
77 |
600 705 |
335 295 |
12× f 23 |
150
|
280 240 |
8× f 23 |
2595 3655 |
2582 |
432 380 |
70 100 |
345 400 |
4× 19×22 |
14 200 |
205 395 |
2590 355 |
||||||||||||
|
10/100F |
100 |
700 805 |
405 355 |
12× f 25 |
200
|
335 295 |
8× f 23 |
2525 2730 |
3160 |
490 432 |
100 125 |
380 435 |
4× f 22 |
14 250 |
240 458 |
2690 360 |
||||||||||||
|
10/135F |
135 |
800 905 |
405 335 |
12× f 25 |
200
|
335 295 |
8× f 23 |
2510 3770 |
3736 |
540 482 |
100 125 |
432 480 |
4× f 22 |
14 250 |
255 475 |
2620 375 |
||||||||||||
|
10/176F |
176 |
705 805 |
405 355 |
12× f 25 |
200
|
335 295 |
8× f 23 |
4705 5709 |
4779 |
489 435 |
100 125 |
382 430 |
4× f 22 |
14 250 |
201 381 |
4700 425 |
||||||||||||
|
10/244F |
244 |
810 908 |
405 355 |
12× f 25 |
200
|
335 295 |
8× f 23 |
4993 6022 |
6056 |
540 485 |
100 125 |
432 480 |
4× f 22 |
14 250 |
611 404 |
4800 450 |
||||||||||||
|
10/290F |
290 |
810 908 |
405 355 |
12× f 25 |
200
|
335 295 |
8× f 23 |
5905 7059 |
6599 |
540 485 |
100 125 |
432 480 |
4× f 22 |
14 250 |
611 404 |
5800 450 |
||||||||||||
|
(b)2LQF1L |
||||||||||||||||||||||||||||
|
型 号 |
H1 |
K |
V |
d5 |
d1 |
S |
型 号 |
H1 |
K |
V |
d5 |
d1 |
S |
|||||||||||||||
|
H |
h |
U |
P |
H |
h |
U |
P |
|||||||||||||||||||||
|
10/19F |
248 185 |
420 12 |
80 120 |
8×f 16 |
150
|
150 290 |
10/29F |
298 205 |
485 12 |
80 120 |
8×f 16 |
150
|
145 310 |
|||||||||||||||
|
10/25F |
280 200 |
455 12 |
80 120 |
8×f 16 |
150
|
145 292 |
10/36F |
324 240 |
535 12 |
80 120 |
8×f 16 |
150
|
150 320 |
|||||||||||||||
|
10/45F |
350 225 |
600 12 |
80 120 |
8×f 16 |
150
|
145 345 |
10/100F |
245 |
14 |
160 |
8×f 16 |
|
458 |
|||||||||||||||
|
10/55F |
375 255 |
650 12 |
100 140 |
8×f 16 |
200
|
185 385 |
10/135F |
540 250 |
960 14 |
140 175 |
8×f 16 |
250
|
225 475 |
|||||||||||||||
|
10/68F |
405 276 |
705 14 |
100 140 |
8×f 16 |
200
|
175 390 |
10/176F |
489 250 |
865 12 |
140 175 |
8×f 16 |
250
|
175 381 |
|||||||||||||||
|
10/77F |
432 240 |
755 14 |
120 160 |
8×f 16 |
200
|
215 395 |
10/244F |
540 265 |
964 14 |
140 165 |
8×f 16 |
250
|
173 404 |
|||||||||||||||
|
10/100F |
490 |
855 |
120 |
8×f 16 |
250 |
190 |
10/290F |
540 265 |
964 14 |
140 165 |
8×f 16 |
250
|
177 404 |
|||||||||||||||
|
2LQF4W型冷却器技术性能及尺寸 |
||||||||||||||||||||||
|
工作介质:矿物油;冷却介质:淡水 |
||||||||||||||||||||||
|
表3 mm |
||||||||||||||||||||||
|
换热 面积 /m2 |
设计 压力 /MPa |
试验 压力 /MPa |
设计 温度 /℃ |
压力降 /MPa |
A |
B |
C |
D |
F |
G |
H |
I |
J |
K |
L |
M |
P |
O |
S |
质量 /kg |
||
|
0.5 0.7 1.0 1.6 |
1.6 |
0.8 |
2.4 |
1.2 |
100 |
≤0.1 |
464 522 696 986 |
212 270 444 734 |
134 192 366 656 |
140 |
178 |
160 |
100 |
80 |
28 |
80 |
130 |
3 |
f 12 |
f 100 |
ZG 3/4″ |
17 18 22 27 |
|
1.3 2.0 2.5 3.5 |
1.6 |
0.8 |
2.4 |
1.2 |
100 |
≤0.1 |
550 706 862 1096 |
278 434 590 824 |
191 347 500 737 |
150 |
193 |
190 |
120 |
95 |
30 |
100 |
157 |
3 |
f 12 |
f 130 |
ZG1″ |
30 34 40 48 |
|
3.0 4.0 4.5 5.5 |
1.6 |
0.8 |
2.4 |
1.2 |
100 |
≤0.1 |
674 830 908 1064 |
382 538 616 772 |
285 441 519 675 |
160 |
208 |
230 |
145 |
115 |
50 |
130 |
188 |
4 |
f 14 |
f 164 |
ZG 1¼″ |
52 61 65 73 |
|
5.0 6.0 7.0 9.0 |
1.6 |
0.8 |
2.4 |
1.2 |
100 |
≤0.1 |
742 830 918 1180 |
430 518 606 868 |
328 416 504 766 |
170 |
220 |
260 |
170 |
135 |
62 |
150 |
217 |
4 |
f 14 |
f 194 |
ZG 1½″ |
71 77 83 102 |
|
8.0 10 12 14 |
1.6 |
0.8 |
2.4 |
1.2 |
100 |
≤0.1 |
793 969 1145 1321 |
446 622 798 974 |
332 508 684 860 |
180 |
246 |
290 |
195 |
155 |
70 |
180 |
246 |
4 |
f 14 |
f 224 |
ZG2″ |
95 111 127 143 |
|
注:2LQF4型冷却器安装位置如下图所示: |
||||||||||||||||||||||
|
|
|
② 立式浮头式冷却器 2LQFL型立式冷却器尺寸 |
||||||||||||
|
|
||||||||||||
|
表4 mm |
||||||||||||
|
型 号 |
A0.5F |
A0.65F |
A0.8F |
A1.0F |
A1.2F |
A1.46F |
A1.7F |
A2.1F |
A2.5F |
A3.0F |
||
|
换热面积/m2 |
0.5 |
0.65 |
0.8 |
1.0 |
1.2 |
1.46 |
1.7 |
2.1 |
2.5 |
3.0 |
||
|
底 部 尺 寸 |
D5 |
186 |
186 |
186 |
220 |
220 |
220 |
270 |
270 |
270 |
308 |
|
|
K |
164 |
164 |
164 |
190 |
190 |
190 |
240 |
240 |
240 |
278 |
||
|
h |
16 |
16 |
16 |
16 |
16 |
16 |
18 |
18 |
18 |
18 |
||
|
G |
75 |
75 |
75 |
80 |
80 |
80 |
85 |
85 |
85 |
90 |
||
|
d5 |
12 |
12 |
12 |
15 |
15 |
15 |
15 |
15 |
15 |
15 |
||
|
筒 部 尺 寸 |
DN |
114 |
114 |
114 |
150 |
150 |
150 |
186 |
186 |
186 |
219 |
|
|
L |
620 |
745 |
870 |
760 |
886 |
1010 |
825 |
975 |
1125 |
960 |
||
|
H1 |
95 |
95 |
95 |
115 |
115 |
115 |
140 |
140 |
140 |
200 |
||
|
P |
93 |
93 |
93 |
105 |
105 |
105 |
120 |
120 |
120 |
170 |
||
|
T |
357 |
482 |
607 |
460 |
585 |
710 |
500 |
650 |
800 |
565 |
||
|
型 号 |
A3.6F |
A4.3F |
A5.0F |
A6.0F |
A7.2F |
A8.5F |
A10F |
A12F |
A14F |
A16F |
||
|
换热面积/m2 |
3.6 |
4.3 |
5.0 |
6.0 |
7.2 |
8.5 |
10 |
12 |
14 |
16 |
||
|
底 部 尺 寸 |
D5 |
308 |
308 |
340 |
340 |
340 |
406 |
406 |
406 |
406 |
406 |
|
|
K |
278 |
278 |
310 |
310 |
310 |
366 |
366 |
366 |
366 |
366 |
||
|
h |
18 |
18 |
18 |
18 |
18 |
20 |
20 |
20 |
20 |
20 |
||
|
G |
90 |
90 |
95 |
95 |
95 |
100 |
100 |
100 |
100 |
100 |
||
|
d5 |
15 |
15 |
15 |
15 |
15 |
18 |
18 |
18 |
18 |
18 |
||
|
筒 部 尺 寸 |
DN |
219 |
219 |
245 |
245 |
245 |
325 |
325 |
325 |
325 |
325 |
|
|
L |
1085 |
1235 |
1015 |
1165 |
1340 |
1100 |
1225 |
1400 |
1400 |
1400 |
||
|
H1 |
200 |
200 |
240 |
240 |
240 |
280 |
280 |
280 |
280 |
280 |
||
|
P |
170 |
170 |
190 |
190 |
190 |
210 |
210 |
210 |
210 |
210 |
||
|
T |
690 |
840 |
570 |
720 |
895 |
590 |
715 |
890 |
890 |
890 |
||
|
型 号 |
A0.5F |
A0.65F |
A0.8F |
A1.0F |
A1.2F |
A1.46F |
A1.7F |
A2.1F |
A2.5F |
A3.0F |
||
|
法兰形式 |
椭 圆 法 兰 |
|||||||||||
|
法 兰 连 接 |
油 |
d1 |
25 |
25 |
25 |
32 |
32 |
32 |
40 |
40 |
40 |
50 |
|
D1 |
90 |
90 |
90 |
100 |
100 |
100 |
118 |
118 |
118 |
160 |
||
|
B1 |
64 |
64 |
64 |
72 |
72 |
72 |
85 |
85 |
85 |
|
||
|
D3 |
65 |
65 |
65 |
75 |
75 |
75 |
90 |
90 |
90 |
125 |
||
|
d3 |
11 |
11 |
11 |
11 |
11 |
11 |
14 |
14 |
14 |
18 |
||
|
水 |
d2 |
20 |
20 |
20 |
25 |
25 |
25 |
32 |
32 |
32 |
40 |
|
|
D2 |
80 |
80 |
80 |
90 |
90 |
90 |
100 |
100 |
100 |
145 |
||
|
B2 |
45 |
45 |
45 |
64 |
64 |
64 |
72 |
72 |
72 |
|
||
|
D4 |
55 |
55 |
55 |
65 |
65 |
65 |
75 |
75 |
75 |
110 |
||
|
d4 |
11 |
11 |
11 |
11 |
11 |
11 |
11 |
11 |
11 |
18 |
||
|
重量/kg |
35 |
38 |
41 |
51 |
55 |
58 |
68 |
77 |
84 |
118 |
||
|
法兰形式 |
圆 形 法 兰 |
|||||||||||
|
法 兰 连 接 |
油 |
d1 |
50 |
50 |
65 |
65 |
65 |
80 |
80 |
80 |
80 |
80 |
|
D1 |
160 |
160 |
180 |
180 |
180 |
195 |
195 |
195 |
195 |
195 |
||
|
B1 |
|
|
|
|
|
|
|
|
|
|
||
|
D3 |
125 |
125 |
145 |
145 |
145 |
160 |
160 |
160 |
160 |
160 |
||
|
d3 |
18 |
18 |
18 |
18 |
18 |
8-f 18 |
8-f 18 |
8-f 18 |
8-f 18 |
8-f 18 |
||
|
水 |
d2 |
40 |
40 |
50 |
50 |
50 |
65 |
65 |
65 |
65 |
65 |
|
|
D2 |
145 |
145 |
160 |
160 |
160 |
180 |
180 |
180 |
180 |
180 |
||
|
B2 |
|
|
|
|
|
|
|
|
|
|
||
|
D4 |
110 |
110 |
125 |
125 |
125 |
145 |
145 |
145 |
145 |
145 |
||
|
d4 |
18 |
18 |
18 |
18 |
18 |
18 |
18 |
18 |
18 |
18 |
||
|
重量/kg |
126 |
137 |
126 |
137 |
148 |
163 |
179 |
227 |
243 |
265 |
||




