|
YB-※车辆用叶片泵 |
|||||||||||
|
YB型车辆用泵内部零件用螺钉装配成一个组合体,使得装配与维修更加容易。泵内装有一个浮动式配流盘,可自动补偿轴向间隙。关键零件选用优质合金钢并经氮化处理,可进一步提高零件加工精度,因此,压力、效率较一般叶片泵为高。该型泵结构紧凑,压力流量脉动少,对冲击载荷的适应性好,安装连接符合ISO标准,可广泛用于起重运输车辆、工程机械及其他行走式机械,也可用于一般工业设备的液压系统 型号意义:
表1 主要技术参数 |
|||||||||||
|
型号 |
理论排量 /mL·r-1 |
额定压力 /MPa |
输出流量 /L·min-1 |
驱动功率 kW |
转速/r·min-1 |
重量/kg |
油口尺寸 |
||||
|
额定 |
最低 |
最高 |
法兰安装 |
脚架安装 |
进口 |
出口 |
|||||
|
YB-A10C |
10.4 |
10.5 |
13.1 |
3.4 |
1500 |
600 |
2000 |
12.3 |
15.1 |
Z1¼ |
Z3/4 |
|
YB-A16C |
16.2 |
21.6 |
5.2 |
||||||||
|
YB-A20C |
21.6 |
28.9 |
7.0 |
||||||||
|
YB-A25C |
24.6 |
32.9 |
8.0 |
||||||||
|
YB-A30C |
30.0 |
40.6 |
9.7 |
||||||||
|
YB-A32C |
32.0 |
43.4 |
10.3 |
||||||||
|
YB-B48C |
48.3 |
64.2 |
15.6 |
30 |
36 |
Z2 |
Z1¼ |
||||
|
YB-B58C |
58.3 |
78.0 |
18.8 |
||||||||
|
YB-B75C |
75.0 |
100.3 |
24.2 |
||||||||
|
YB-B92C |
92.5 |
125.4 |
29.8 |
||||||||
|
YB-B114C |
114.2 |
154.8 |
36.8 |
||||||||
|
注:输出流量、驱动功率均为额定工况下保证值。 |
|||||||||||
|
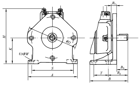
表2 外形尺寸 /mm |
|||||||||||||||||||||||
|
法 兰 安 装 式 |
|
||||||||||||||||||||||
|
型 号 |
f A |
B |
B1 |
B2 |
B3 |
C |
C1 |
C2 |
D |
D1 |
|||||||||||||
|
YB-A※C |
174 |
192 |
87 |
59 |
67 |
157 |
65 |
110×110 |
Z1¼ |
Z3/4 |
|||||||||||||
|
YB-B※C |
213 |
262 |
112 |
73 |
88 |
202.5 |
85 |
155×155 |
Z2 |
Z1¼ |
|||||||||||||
|
型 号 |
S |
fS1 |
t |
u |
fW |
fE |
fd |
fJ |
K |
||||||||||||||
|
YB-A※C |
9.5 |
146 |
24.5 |
32 |
14 |
120 |
|
|
|
||||||||||||||
|
YB-B※C |
9.5 |
181 |
34.5 |
38 |
18 |
148 |
|
|
|
||||||||||||||
|
脚 架 安 装 式 |
备注:轴、键尺寸见法兰安装式 |
||||||||||||||||||||||
|
型 号 |
A |
B |
B1 |
B2 |
B3 |
fD |
S |
T |
fW |
H |
K |
||||||||||||
|
YB2-A |
172 |
137.5 |
17.5 |
74 |
41.5 |
174 |
146 |
50.8 |
11 |
194.1 |
92.1 |
||||||||||||
|
YB2-B |
265 |
185 |
19 |
92 |
54 |
213 |
235 |
76.2 |
18 |
234.5 |
109.5 |
||||||||||||



