|
轮廓画法(GB/T 16675.1—1996) |
||||
|
类别 |
简 化 后 |
说 明 |
||
|
轮 廓 画 法 |
外 形 轮 廓 画 法 |
|
已在一个视图中表示清楚的产品组成部分,在其他视图中可以画出其外形轮廓 |
|
|
简 化 后 |
简 化 前 |
在能够清楚表达产品特征和装配关系的条件下,装配图可仅画出其简化后的轮廓 |
||
|
简 化 轮 廓 画 法 |
|
|
||
|
简 化 后 |
说 明 |
|||
|
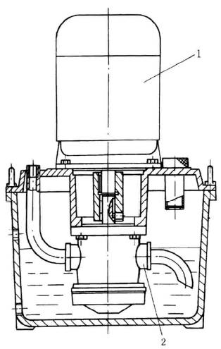
不 剖 画 法 |
|
在装配图中,当剖切平面通过的某些部件为标准产品或该部件已由其他图形表示清楚时,可按不剖绘制,如图中件1(电动机)、件2(油泵)均为标准件按不剖绘制 |
||




