|
刚架的结点设计 |
|
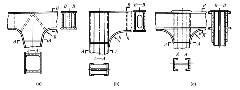
铰接框架的结点与前面几章相同,本节只介绍刚接框架结点的设计 刚架转角或结点是要传递弯矩的。梁与柱组成的刚架转角形式见表梁和柱的连接图3~图6。有弯矩翼缘的刚架转角大多如图1所示。外翼缘或多或少呈锐角形式(图1b),内翼缘为连续的曲线。这种刚架转角可理想化为弯曲很大的曲梁,并按曲梁的理论来计算。理论计算表明在受压翼缘变形失稳时,应力部分集中在腹板上,所以这些腹板必须加强。对于锐角形式的转角,有时采用图1c形式的设计对提高腹板的刚性较为有效
图1 弯曲翼缘的刚架转角 图2是几种焊接形式的内翼缘为弯曲的转角和结点。图a是箱形断面刚架的结点,把对接缝布置在过渡圆弧之外,焊缝受力较小。图b是钢板和型钢焊接的刚架结点,把钢板构件的下翼缘以圆弧延伸过渡再和型钢焊接。这样制造方便,过渡平缓。图c是型钢焊成的刚架结点,在该处另焊上具有过渡圆弧的连接钢板,既增加结点的刚性,又减少应力集中
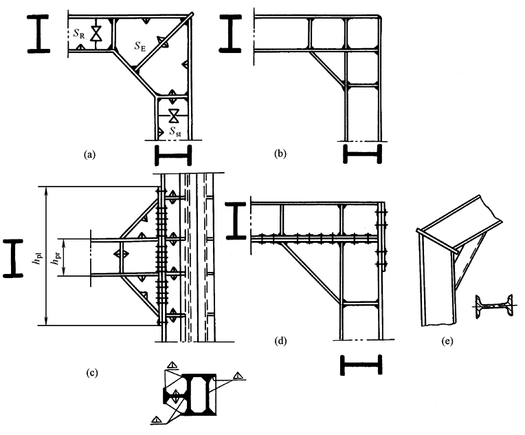
图2 多边形翼缘的刚架转角如图3 如果出现焊接和紧配螺栓作为连接件,则图3a、b中的转角必须在工厂中制成,安装拼接放在转角附近的横梁上、立柱上或两者之上。在结构a中,由于腹板的应力较大,故在转角中布置一块比横梁或立柱中的腹板还厚一些的腹板。图e是最简单的一种型式:用两工字钢对接来组成刚梁结点。为对焊方便,使用连接板,拐角处用槽钢作筋,以提高结点的刚性。对于图c所示的刚架结点,采用焊接或采用螺栓连接,其焊接或螺栓连接如图4中a和b所示。根据此图形可以计算连接的强度
图3
图4 |




