|
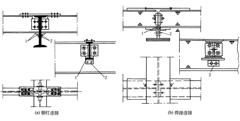
梁和柱的连接 |
|||||
|
梁和梁的连接分铰接和刚性连接两种。同样,铰接只传递拉压和剪力而不传递力矩;刚接则还传递力矩。还有一种半刚性连接,可传递部分力矩,但在机械计算中为简便起见,也按铰接考虑 连接是以焊接连接为主,很少用螺钉或铆接。焊接方法可参看有关焊接规范。下面主要介绍用螺栓的连接方法。焊接连接结构可参看“梁的设计”,或仿此设计 图1为梁和梁用螺钉或铆钉的连接形式,有的梁有承载薄板,皆属于铰接接头
图1 梁和梁的连接形式 图2为梁与柱的连接形式。其中a~d为铰接连接;e、f为半刚性连接
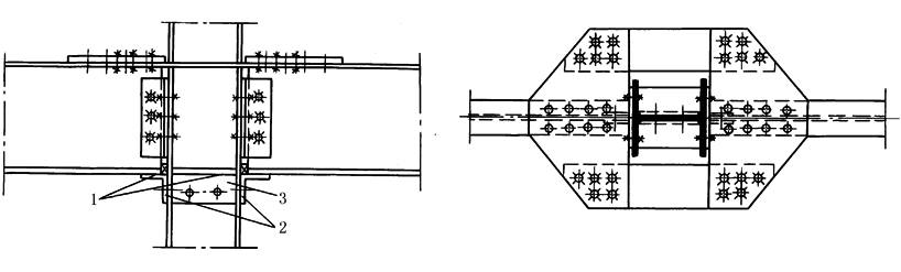
图2 梁与柱的连接形式 梁与梁或梁与柱的刚性连接即抗弯连接必须保证弯矩的传递。图3所示为越过一根大梁的抗弯的梁连接,关键是梁的翼缘必须用盖板相连。此时,大梁的腹板是可能有间隙的。图4则是梁的相互连接之间有支座时的螺栓连接情况
图3 越过一根大梁的抗弯的梁连接 1—压块;2—安装角钢
图4 梁通过支座时的相互连接 1—压块;2—安装角钢;3—装配角钢 图5为梁和柱的连接示例 斜梁与柱连接成门式刚架时,端板可以采用竖放、横放或斜放三种形式,如图6所示
图5 梁和柱的连接示例
图6 斜梁与柱连接成门式刚架 螺栓或铆钉的最大、最小允许距离见下表。螺钉及外肋条的数量对立柱连接处刚度的影响见表螺钉及外肋条的数量对立柱连接处刚度的影响 |
|||||
|
螺栓或铆钉的最大、最小允许距离 |
|||||
|
名 称 |
位置和方向 |
最大允许距离(取两者的较小值) |
最小允许距离 |
||
|
中心间距 |
任意方向 |
外 排 |
8d0或12t |
3d0 |
|
|
中间排 |
构件受压力 |
12d0或18t |
|||
|
构件受拉力 |
16d0或24t |
||||
|
中心至构件 边缘的距离 |
顺内力方向 |
4d0或8t |
2d0 |
||
|
垂直内力方向 |
切割边 |
1.5d0 |
|||
|
轧制边 |
高强度螺栓 |
||||
|
其他螺栓或铆钉 |
1.2d0 |
||||
|
注:1.d0为螺栓或铆钉的孔径;t为外层较薄板件的厚度。 2.钢板边缘与刚性构件(如角钢、槽钢等)相连的螺栓或铆钉的最大间距,可按中间排的数值采用。 |
|||||






