|
叶片式摆动气缸(180°)对片状工件的正反面翻转工艺的应用 |
||
|
应用 原理 |
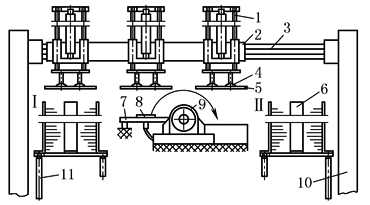
1—导向机构(含标准气缸);2—无杆气缸上的滑块;3—无杆气缸;4—吸盘;5—工件;6—堆料架;7—翻转台;8—椭圆吸盘;9—摆动气缸;10—机架;11—料架支撑 |
有时由于工艺或包装的需要,需将片状工件的上下面交换。在这个例子中,是通过一个逐步传输的操作实现的。第一步,将工件从料架Ⅰ中取出,并放置在翻转台7上。第二步,放置在翻转台7上的工件通过叶片式摆动气缸被翻转,放到工作台面上,工件完成正反面交换。第三步,将工件放入料架Ⅱ中。在工件翻转过程中,为了防止工件从翻转叶片上掉下来,可通过真空吸住。所有必要的运动都可通过使用标准气动组件来得到。此设备对工件的处理过程可防止对工件的破坏。垂直升降气缸的行程应能保证工件到达料架的底部 |
|
适用 组件 |
①无杆气缸;②标准气缸和导向装置或导杆止动气缸;③真空安全阀或真空发生器;④单气控阀或阀岛;⑤接近开关;⑥摆动气缸,⑦吸盘或椭圆吸盘;⑧安装附件;⑨管接头 |
|

