|
止动气缸对前一站储存站的缓冲蓄料应用 |
||
|
应用 原理 |
|
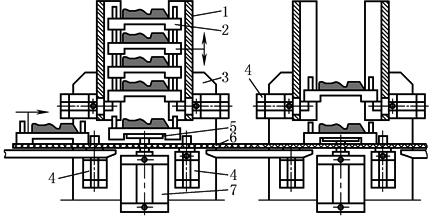
1—料架;2—工件托架;3—支架; 4—制动气缸;5—升降台;6—传送带; 7—气缸 |
|
现代化生产线上的工作站一般都是比较宽松地连在一起,因为这样比固定的连接能产出更多的产品。原因在于当一个工作站出现故障的情况下,其他的工作站一般能继续工作,至少在一定的时间内是可以的。为了达到这一点,必须在工作站之间装上物料堆放缓冲器。在正常情况下,工件托架是一直往前走的,然而,如果下一个工作站出现故障,工件托架就被从传送线上取下,缓冲起来,当缓冲器被填满以后,上位工件站必须停止工作,上图说明了这种功能的设计方法。为了保证缓冲器的堆料和出料操作顺利进行,上位的工件托架必须被暂时停住。气缸在上举、锁定和阻挡工件托架上可以起到很好的作用。缓冲存储的设计是不复杂的 |
||
|
适用 组件 |
①制动气缸;②接近开关;③单气控阀;④紧凑型气缸或防扭转紧凑型气缸;⑤单向流量阀;⑥安装附件;⑦管接头 |
|

