|
行星轮结构 |
|
|
行星轮结构根据传动型式、传动比大小、轴承类型及轴承的安装形式而定。NGW型和NW型传动常用的行星轮结构见下表 |
|
|
应保证行星轮轮缘厚度δ>3m,否则须进行强度或刚度校核 在一般情况下,行星轮齿宽与直径的比为:ψd=0.5~0.7,硬齿面取较小值,即ψd=0.5 为使行星轮内孔配合直径加工方便,切齿简单,制造精度易保证,应采用行星轮内孔无台肩结构
|
轴承装在行星轮内,弹簧挡圈装在轴承内侧,因而增大了轴承间距,减小了行星轮倾斜。但拆卸轴承比较复杂
|
|
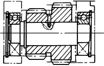
整体双联齿轮断面急剧变化处会引起应力集中,须使δ≥(3~4)m;必要时应进行强度校核 整体双联齿轮的小齿圈不能磨齿
|
特点同上图:采用圆柱滚子轴承,用于载荷较大的场合
|
|
为使结构紧凑、简单和便于安装,轴承装入行星轮内,弹簧挡圈装在轴承外侧。由于轴承距离较近,当两个轴承原始径向间隙不同时,会引起较大的轴承倾斜,使齿轮载荷集中
|
采用无多余约束浮动机构时,行星轮内设置一个球面调心轴承,可使A-C传动的载荷沿齿宽均匀分布
|
|
当传动比
|
行星轮的径向尺寸受限制时,可采用滚针轴承。行星轮的轴向固定用单列向心球轴承,该轴承不承受径向载荷
|
|
当载荷较大,用单列向心球轴承承载能力不足时,可采用双列向心球面滚子轴承
|
当行星轮直径较小时,为提高轴承寿命,可采用专用三列无保持架小直径滚子轴承
|
|
在高速重载行星齿轮传动中,常因滚动轴承极限转速和承载能力的限制而采用滑动轴承,并用压力油润滑。为使行星轮有可靠的基准孔和减磨材料层的应力不变,通常将减磨材料浇在行星轮轴表面上。当l/d>1时,可以做成双轴承式,以提高承载能力并使载荷均匀分布。高速传动用双联齿轮结构的轴承推荐用轴瓦并安装在行星架上。轴承长度l、轴颈直径d及轴承间隙Δ的关系可取l/d=1~2;Δ/d=0.0025~0.02
|
由于双联行星轮结构会产生较大力矩,故使行星轮轴线偏斜而产生载荷集中。为了减少载荷集中,可将轴承安装在行星架上,以得到最大的轴承间距。由于行星轮轴不承受转矩,故齿轮和轴可用短键或销钉连接
|
|
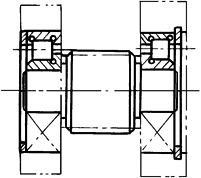
采用圆锥滚子轴承可提高承载能力。轴承轴向间隙用垫片调节;为便于拆卸,在两轴承间安设隔离环
|
如果双联行星轮需要磨齿时,须设计成装配式。两行星轮的精确位置用定位销定位或从工艺上来保证。大齿轮磨齿前,应牢固地固定在已加工完的小齿轮上,再进行磨齿
|














