|
气压离合器的特点、型式与应用 |
|||||
|
这是一种利用气压操纵的离合器。常用空气压力为0.4~1MPa,有活塞式、隔膜式和气胎式。活塞式加压行程大,补偿磨损容易,隔膜式结构紧凑,质量轻,密封性好,动作灵敏,但行程短,寿命短;气胎式传递转矩大,吸振性好,但气胎变形阻力大,气压损失大。 气压离合器比液压离合器接合速度快,接合平稳,可高频离合,自动补偿磨损间隙,维护方便。缺点是排气时有噪声,需有压缩空气源。 |
|||||
|
型式 |
气胎式 |
||||
|
结 构 图 |
结合元件有摩擦盘、摩擦块、摩擦锥盘,常用材料为石棉或粉末冶金,一般为干式。传递转矩大,接合平稳,便于安装,能补偿主从动轴之间的少量角位移和径向位移。允许径向位移3mm,轴向位移15mm,角位移在1m长度上为2mm。结构紧凑,密封性好,从动部分惯性小,使用寿命长,气胎变形阻力大,材料成本高,使用温度高于60℃,会降低气胎寿命,低于-20℃,气胎易变脆破裂。禁止用于油污场合
(a) 内收式径向气胎离合器 1—鼓轮; 2—矩形销; 3—闸瓦; 4—气胎; 5—弹簧
(b) 外胀式径向离合器 |
||||
|
结 构 图 |
(c) 轴向式气胎离合器 |
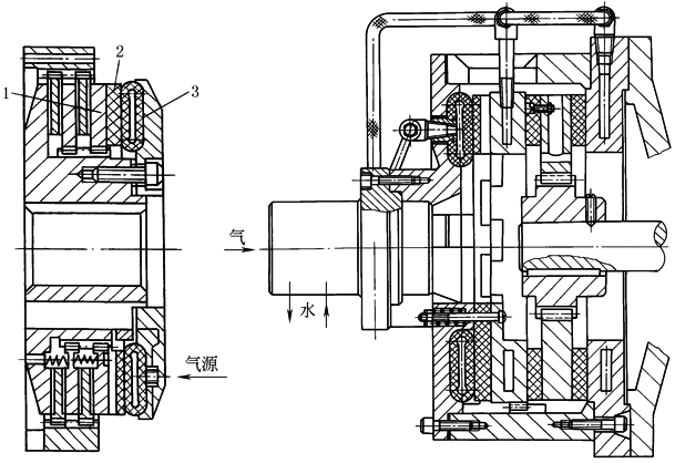
左图为双盘轴向气动离合器;右图为水冷式轴向气动离合器 1—内圆盘; 2—隔热层; 3—气胎 |
|||
|
特 点 、 应 用 |
图a 内外鼓轮分别与主从动轴固定连接,气胎4固定在外轮上,内面有耐磨材料制成的闸瓦3,空转时瓦块与内鼓轮有2~3mm间隙,通入压缩空气时,瓦块向内鼓轮1压紧,传递转矩,泄压时,两轴分开 图b 气胎固定在内轮上,改善了散热条件,但因气胎向外扩张与转动时产生的离心力方向一致,因此在分离时会阻挠离合器脱开,所以没有前一种结构应用广泛 图c 气胎呈轴向分布,离心力对离合器的离、合都没有影响,且摩擦盘的尺寸较小,重量较轻,但补偿两轴的轴向位移性能不好,故应用不及径向式广泛 |
||||
|
型 式 |
活塞式 |
||||
|
结 构 图 |
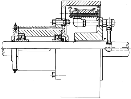
活塞式气动离合器传动转矩大,使用寿命长,接合平稳,多制成大型离合器,但制造比较复杂,成本较高,重量较大,为防止接合元件的烧蚀和变形,设有良好的散热孔。功率大的要采用通风结构,工作负载大的还可以采用强制水冷却。活塞缸分整圆和环形两种,一般采用0.4~0.6MPa的气压;对于大型离合器为了减小尺寸和重量,可以采用0.75~0.85MPa气压,活塞式气动离合器在锻压机上应用较多,其他如钻机、造纸机等
|
||||
|
(a) 圆盘摩擦块活塞式 |
(b) 高弹性双锥式 1—弹性元件; 2,7—锥盘; 3—活塞; 4,6—外壳; 5—环形缸 |
||||
|
型 式 |
活塞式 |
隔膜式 |
|||
|
结 构 图 |
(c) 圆盘多片活塞式 1—活塞; 2—活塞缸; 3—离合器片; 4—刚性杆; 5—制动器片; 6—弹簧; 7—压盘 |
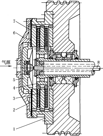
(d) 圆盘双片隔膜式 1—壳体; 2—外摩擦盘; 3—内摩擦盘; 4—接盘; 5—压盘; 6—汽缸盖; 7—隔膜; 8—刚性杆 |
|||
|
特 点 、 应 用 |
图a 结构进气时,活塞左移,压紧摩擦块,离合器接合,排气后,在复位弹簧推力作用下,活塞右移与摩擦块分离,保持一定间隙,离合器脱开,调节弹簧的弹力,可以改变离合时间 图b 结构紧凑,能缓和动力装置轴系的扭振影响,允许有较大的轴线安装误差,额定转矩范围5600~108000N·m,最高转速900~2800r/min。当中心进气后,活塞3和环形缸5分别左右移动,使锥盘2、7涨开,压向离合器外壳4、6时,离合器接合,反之则分离 图c 为圆盘多片气动离合器和制动器,两端悬臂结构,左端为离合器,右端为制动器,采用粉末冶金衬面的摩擦片,结构紧凑。在离合器与制动器之间装有穿过轴心而使二者连锁的刚性杆4。当活塞缸2左侧进气时,活塞压紧离合器片3,并经刚性杆推动制动器压盘7使制动器片5松开,开始接合,放气时,活塞靠制动器弹簧6复位,离合器脱开 |
||||
|
隔膜比活塞重量轻,惯量小,动作灵敏,接合与脱开时间短,密封性好,空气消耗量小,离合器轴向尺寸缩短,膜片用化纤夹层橡胶制成,有弹性,能自动补偿不规则磨损和轴向跳动。可防振动冲击。膜片制造简单,更换方便,调节容易,缺点是压紧行程受一定的限制,膜片寿命短 |
|||||
|
|||||







