|
YOTGC、GST、GWT型 |
|||||||||||||
|
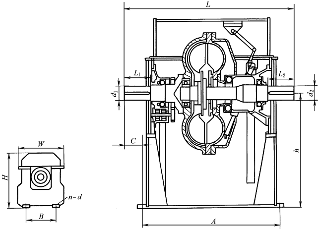
YOTGC、GST、GWT型偶合器结构与外形尺寸 |
|||||||||||||
|
技术性能 |
|||||||||||||
|
型 号 |
输入转速 /r·min-1 |
传递功率 /kW |
外 形 及 连 接 尺 寸 /mm |
质量 /kg |
|||||||||
|
L |
W |
H |
h |
A |
B |
C |
n-d |
d1 d2 |
L1 L2 |
||||
|
YOTGC280 |
1500 3000 |
4~11 30~85 |
798 |
919 |
1144 |
500 |
636 |
484 |
81 |
4-f 27 |
f 40 |
110 |
480 |
|
YOTGC320 |
1500 3000 |
7.5~21 60~165 |
798 |
919 |
1159 |
500 |
636 |
484 |
81 |
4-f 27 |
f 40 |
110 |
520 |
|
YOTGC360 |
1500 3000 |
13~35 110~305 |
830 |
1207 |
940 |
560 |
652 |
680 |
91 |
4-f 27 |
f 60 |
120 |
580 |
|
YOTGC400 |
1500 3000 |
30~65 240~500 |
830 |
1207 |
940 |
560 |
652 |
680 |
91 |
4-f 27 |
f 60 |
120 |
600 |
|
YOTGC450 |
1500 3000 |
50~110 430~900 |
1020 |
1120 |
1375 |
635 |
940 |
865 |
38 |
4-f 27 |
f 75 |
145 |
790 |
|
YOTGC560 |
1000 1500 |
35~100 115~340 |
1166 |
1310 |
1594 |
810 |
1080 |
920 |
30 |
4-f 27 |
f 85 |
170 |
1370 |
|
YOTGC650 |
1000 1500 |
75~215 250~730 |
1300 |
1200 |
1500 |
840 |
1180 |
900 |
60 |
4-f 35 |
f 100 |
150 |
1920 |
|
YOTGC750 |
1000 1500 |
150~440 510~1480 |
1300 |
1200 |
1500 |
840 |
1180 |
900 |
60 |
4-f 35 |
f 100 |
150 |
2040 |
|
YOTGC875 |
750 1000 |
150~400 365~960 |
1720 |
1500 |
1570 |
880 |
1580 |
1200 |
70 |
4-f 45 |
f 130 |
250 |
3100 |
|
YOTGC1000 |
750 1000 |
285~750 640~1860 |
1930 |
1840 |
1810 |
1060 |
1810 |
1250 |
60 |
4-f 45 |
f 150 |
250 |
5100 |
|
YOTGC1050 |
750 1000 |
360~955 815~2300 |
1930 |
1840 |
1810 |
1060 |
1810 |
1250 |
60 |
4-f 35 |
f 150 |
250 |
6150 |
|
YOTGC1150 |
600 750 |
360~955 715~1865 |
1930 |
1840 |
1810 |
1060 |
1810 |
1250 |
60 |
4-f 35 |
f 150 |
250 |
6200 |
|
GST50 |
1500 3000 |
70~200 560~1625 |
1020 |
1120 |
1375 |
635 |
940 |
865 |
38 |
4-f 27 |
f 75 |
145 |
1100 |
|
GWT58 |
1500 3000 |
140~400 1125~3250 |
1230 |
1310 |
1594 |
810 |
1080 |
920 |
30 |
4-f 27 |
f 95 |
165 |
2100 |
|
注:1.此型为固定箱体式,额定转差率为1.5%~3%。用于M∝n2的离心机械时,其调速范围为1~1/5;用于M=C的恒转矩机械时,其调速范围为1~1/3。 2.GST50、GWT58为引进英国Fluidrive公司专有技术制造。 3.生产厂家为大连液力机械总厂。 |
|||||||||||||

