|
YOXD型系列 |
|||||||||||
|
|
|||||||||||
|
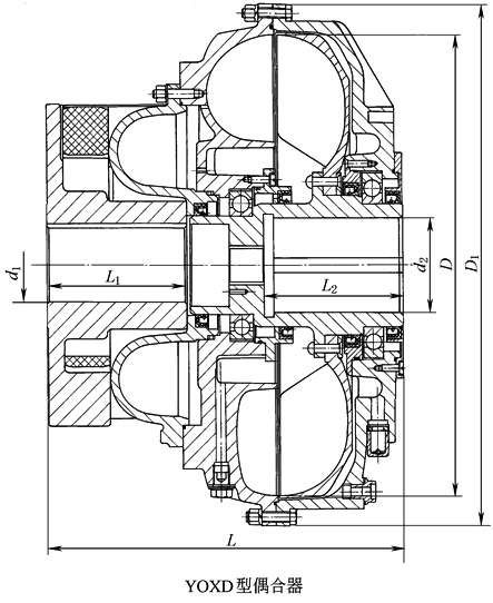
技术性能 |
|||||||||||
|
型 号 |
输入转速 /r·min-1 |
传递功率 /kW |
过载系数 Tg |
额定 滑差 /% |
外形尺寸 D×L /mm |
连 接 尺 寸 /mm |
输出方式及规格 |
质量 /kg |
|||
|
输 入 |
输 出 |
||||||||||
|
d1 |
L1 |
d2 |
L2 |
||||||||
|
YOXD360S |
1500 |
17~40 |
2~2.5 |
4~5 |
f 415×380 |
60 |
110 |
50 |
55 |
渐开线花键 INT42Z×2.5m×30P×5H |
54 |
|
YOXD400S |
1500 |
30~55 |
2.5~3 |
3~3.5 |
f 465×394 |
55 |
110 |
45 |
96 |
渐开线花键 INT42Z×2.5m×30P×5H |
70 |
|
YOXD450S |
1500 |
55~110 |
2.5~3 |
3 |
f 520×508 |
75 |
140 |
80 |
|
平键22×160 |
106 |
|
YOXD500 |
1500 |
90~132 |
2~2.5 |
3 |
f 570×478 |
80 |
170 |
65 |
120 |
渐开线花键 INT60Z×3.5m×30P×5H |
104 |
|
YOXD500A |
1500 |
90~160 |
2~2.5 |
3 |
f 558×432 |
65~80 |
140~170 |
65~115 |
|
平键键宽18~22 键长150~170 |
129 |
|
YOXD560 |
1500 |
132~250 |
2.5~3 |
2~3 |
f 634×432 |
80~100 |
170~210 |
75~115 |
|
平键键宽18~28 键长153~240 |
162 |
|
YOXD650 |
1500 |
315~525 |
|
|
f 720×669 |
110 |
115 |
115 |
120 |
渐开线花键 INT60Z×3.5m×30P×7H |
287 |
|
注:1.生产厂家为张家口煤矿机械厂。 2.此类偶合器用水做工作介质,具有防火防爆的特性。 |
|||||||||||

