|
头部清扫器 |
|||||||||
|
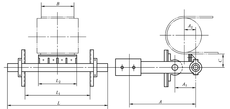
头部清扫器装设于输送机头部卸料滚筒处,用以清扫输送带工作面上黏附的物料,并使其掉入头部漏斗中
|
|||||||||
|
重锤刮板式清扫器 mm |
|||||||||
|
带宽B |
L |
L1 |
L2 |
A |
A1 |
A2 |
C |
质量/kg |
图 号 |
|
500 |
990 |
680 |
520 |
530 |
200 |
≥60 |
120 |
61.2 |
50E11 |
|
650 |
1140 |
830 |
680 |
64.4 |
65E11 |
||||
|
800 |
1360 |
1050 |
840 |
580 |
64.8 |
80E11 |
|||
|
1000 |
1560 |
1250 |
1040 |
72.9 |
100E11 |
||||
|
1200 |
1810 |
1500 |
1240 |
630 |
78.0 |
120E11 |
|||
|
1400 |
2010 |
1700 |
1440 |
82.6 |
140E11 |
||||
|
注:刮板的厚度均为10mm。 |
|||||||||

