|
滚动轴承组合设计的典型结构 |
|||
|
序号 |
结 构 型 式 |
其他组合 |
特 点 |
|
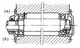
1 |
|
左端:深沟球轴承 右端:单列圆柱滚子轴承 |
左端为固定支点,右端为浮动支点。结构简单,拧紧轴承盖时轴承不会被压紧。(a)型箱体为通孔,便于加工,(b)型可承受稍大的轴向力。本结构用以承受径向力和不大的轴向力。广泛用于各种机械 当右端使用圆柱滚子轴承时,其外圈也应做轴向固定 |
|
2 |
|
带单挡边的单列圆柱滚子轴承 |
轴承靠端盖向固定。右端轴承外圈与端盖间留有不大的间隙(0.5~1mm),以便游动。主要用于承受径向力。结构简单,加工及安装均方便 |
|
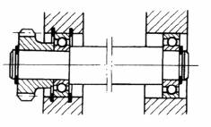
3 |
|
|
左端为固定支点,右端为游动支点。结构简单,装卸容易,外壳为通孔,便于加工,广泛用于轴向力较小的场合 |
|
4 |
|
推力球轴承 |
(a)型用轴承盖与箱体间的垫片,(b)型用螺钉和压盖调整轴向间隙或预紧。结构简单,装拆简便,箱体为通孔,加工容易,能同时承受径向力和较大的轴向力 |
|
5 |
|
|
右端为固定支点,用两个圆锥滚子轴承承受轴向力,左端为游动支点。轴承装在套筒中,便于提高轴承孔的配合精度,但加工面增多。能承受较大的径向和轴向力 |
|
6 |
|
单列圆柱滚子轴承 |
左端是游动支点,右端是固定支点,(a)型使用双向推力球轴承,(b)型使用两个单向推力球轴承。本结构能承受很大的轴向和径向载荷 当采用圆柱滚子轴承时,应考虑外圈的轴向固定问题 |
|
7 |
|
单列圆柱滚子轴承 |
用对称安装的两个单向推力球轴承承受轴向力,用套筒与箱体间的垫片调整轴向间隙。当采用圆柱滚子轴承时,应注意外圈的轴向固定问题 |
|
8 |
|
调心滚子轴承 |
本方案轴是游动的,常用在人字齿轮传动中(往往是高速轴),用以自动调节两边齿的受力。一般用于重载 |
|
9 |
|
推力球轴承 |
适用于小圆锥齿轮的支承,(a)型的优点:①轴向力由受径向力小的右端轴承承受;②结构简单;③用轴承盖与套筒间的垫片调整轴向间隙,调整方便。(b)型的优点:①结构刚性大;②允许轴的热胀量大 |
|
10 |
|
|
向心球轴承只承受轴向载荷,为便于装配,外圈与套筒的内孔之间留有径向间隙。适用于径向载荷较大,轴向载荷较小,精度要求较高的情况下 |
|
11 |
|
圆锥孔调心球轴承 |
采用自动调心型轴承,适用于两轴承座不同轴度较大,轴的刚性较小的场合。左端为固定支点,右端为游动支点。(a)型能承受较大的轴向力,(b)型装在光轴上,便于调整轴向尺寸,但不能用于轴向力较大的场合(图中所有轴承座为对开式) |
|
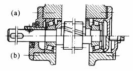
12 |
|
|
车床主轴的一种典型结构。为增加轴的刚性,采用三点支撑,右端为固定支点,其余两支点皆可游动。用两个单向推力球轴承承受轴向力,用套筒压紧带锥孔的双列圆柱滚子轴承,并以此来调整径向游隙。右端有退卸套,便于拆卸。此结构能承受较大的径向和轴向力且精度较高 |












