|
纵梁的结构 |
|
机架结构的主要构件是梁。桁架可看作是一个组合的梁。立式塔梁也可看作是一个直立的悬臂梁 纵梁形状一般中部断面较大,两端较小,与所受的弯矩大体适应。不用大型压制设备时,也可采用等断面纵梁。对于大断面的梁,可用钢板焊接、铆接或螺钉连接。图1为汽车纵梁的外形和断面图。有时,将纵梁前端适当下弯以简化横梁的设计,或将下翼缘局部加宽以增加横梁的紧固件数。在汽车的多品种系列化生产中,为了适应轴距与汽车总重的变化,常使各种槽形纵梁的变断面部分和等断面部分的内高保持不变,而只改变其等断面部分的长度。改用不同强度的材料,采用加强板(图1b)改变板厚或翼缘宽度,以便横梁可以通用
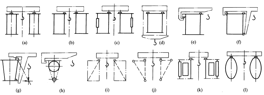
图1 汽车纵梁 图2和图3为起重机主梁的断面形状。其中图2a~f为手动梁式起重机常用的主梁截面型式简图;图g~k为电动单梁起重机主梁截面型式简图;图l、m为电动葫芦双梁起重机主梁常用的截面型式。图3为桥式起重机桥架主梁的截面基本形式
图2 起重机主梁断面形状(之一)
图3 起重机主梁断面形状(之二) (a)正轨箱形双梁;(b)偏轨箱形双梁;(c)偏轨空腹箱形;(d)正轨单主梁箱形;(e)~(g)偏轨单主梁箱形; (h)管形单主梁;(i)四桁架结构;(j)三角形截面桁架结构;(k)空腹副桁架结构;(l)椭圆管双梁结构 对于焊接的梁,通常还有如图4所示的外形及图5所示的截面形状。在图5中,m为日本生产的起重机主梁截面形状;n为天津起重设备厂生产的电动葫芦双梁起重机主梁截面形状
图4 焊接梁的外形 (a)等断面梁;(b)多翼缘梁;(c)不等厚翼缘对接梁;(d)鱼腹梁;(e)悬臂梁; (f)曲形梁;(g)等高空腹梁;(h)不等高空腹梁;(i),(j)锯齿梁
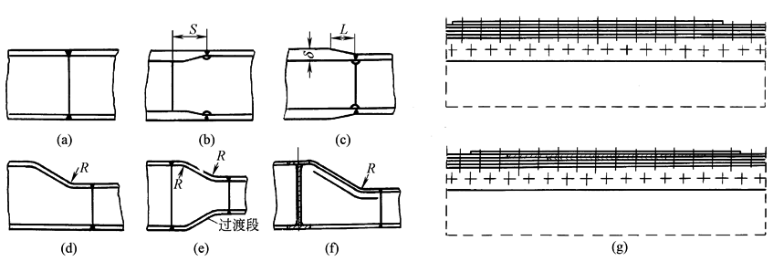
图5 焊接梁的截面形状 对于大型梁,可以采用拼接、焊接或铆接。为了拆装运输方便,也可以采用螺栓连接。此时,大多数采用变截面梁。但端部的高度不宜小于0.5倍梁高。变截面长度约为全长的1/6。梁的连接见图6a~f,但必须保证焊接工艺,使拼接的截面与没有拼接的截面能承受同样大小的外力。板梁为对接拼接时,腹板和翼缘板焊缝可相互错开约S=200mm,以免使焊缝过于密集,见图6b。或在腹板上开间隔圆弧,见图6b、c
图6 梁的连接 其他设备的梁截面形状见本章“梁的局部稳定性”节 对于不同高度的梁的对接,应有一过渡段,焊缝应尽量不在拐角部位(图6d~f)。图6g为翼缘板的阶梯形焊接拼接形式。图7绘出了变截面板式梁的局部详图
图7 变截面板式梁局部详图 图8为铆接板梁的拼接形式。对于铆接梁,简支梁的经济高度为
图8 |








