|
含锥齿轮副的装配图实例 |
|
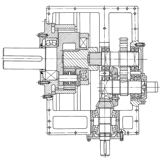
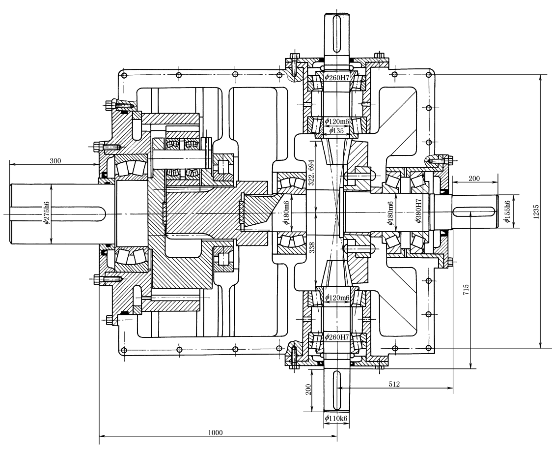
(1) 一级传动锥齿轮副减速器装配图(见图1) (2) 高减速比圆锥-圆柱行星齿轮减速器及其改进(见图2和图3) 图2所示为采煤机减速器(改进前),因零变位锥齿轮传动的传动比最大为u=7,因此与圆柱齿轮组成两级传动。传动比为
采用非零变位新齿形制的锥齿轮,可用一级锥齿轮传动代替两级传动,以减少体积。传动比为 u=39/5=7.8 此时,径向变位系数xS=0.66+0.66=1.32>0 切向变位系数xtS=0.022+0=0.022>0
图1 一级传动锥齿轮减速器(无键式)
图2 锥齿轮-柱齿轮二级减速器(改进前) 图3为改进后的减速器。由于减少了一级传动,而且采用了小齿数的锥齿轮,则改进前后体积比为12.8∶1。为了加强运转的安全性,利用节省下来的空间中的一部分增加一套制动机构,与输入轴共轴线
图3 高减速比新型锥齿轮一级减速器(改进后) (3) 二级圆锥-圆柱齿轮箱减速器装配图(见图4)
图4 二级圆锥-圆柱齿轮箱减速器 1—齿轮箱壳体;2—输入油;3,9,18,29—轴承;4—小锥齿轮;5,10,19—端盖;6—小齿轮轴;7—端板;8—垫环;11—唇式油封;12—出油口(外接阀门); 13—大齿轮;14,15—空心轴;16—铰制螺栓及螺母;17—销钉;20—摆线油泵;21—联轴器(外齿轮);22—联轴器内齿轮;23—大锥齿轮轮毂; 24—大锥齿轮轮缘;25—通气器;26—齿轮箱上盖;27—垫片;28—轴承箱;30—油脂加油器;31—唇式油封;32—花键 (4)斜交轴二级圆锥-圆柱齿轮减速器装配图
图5 圆柱-圆锥二级减速器(斜交轴式) 1—主壳体;2—端面密封;3—输入法兰;4—主动螺旋锥齿轮;5—从动螺旋锥齿轮;6—输出法兰;7—风扇传动皮带轮;8—从动斜齿轮; 9—后盖;10—密封圈;11—主动斜齿轮;12—油泵;13—温度传感器;14—滤油器;15—磁性销检测器 |





