|
搅拌传动装置机械密封(HG 21571—1995) |
||||||||||||||||||||||||||||||||
|
表1 搅拌传动装置机械密封型式及型号 |
||||||||||||||||||||||||||||||||
|
型号 |
结 构 型 式 |
压力等级 /MPa |
使用温度 /℃ |
最 大 线速度 vg/m·s-1 |
介质端 材 料 |
|||||||||||||||||||||||||||
|
轴向单 端面 |
双端面 |
非平衡 |
平 衡 |
内置轴承 |
||||||||||||||||||||||||||||
|
径 向 |
轴 向 |
|||||||||||||||||||||||||||||||
|
2001 |
√ |
|
|
|
√ |
|
0.6① |
-20~150 |
3 |
碳 钢 、 不 锈 钢 |
||||||||||||||||||||||
|
2002 |
√ |
|
|
|
√ |
√ |
||||||||||||||||||||||||||
|
2003 |
|
√ |
|
|
√ |
|
1.6 |
-20~300 |
||||||||||||||||||||||||
|
2004 |
|
|
√ |
√ |
|
|
||||||||||||||||||||||||||
|
2005 |
|
|
√ |
√ |
|
√ |
||||||||||||||||||||||||||
|
2006 |
|
|
√ |
|
√ |
|
||||||||||||||||||||||||||
|
2007 |
|
|
√ |
|
√ |
√ |
2 |
|||||||||||||||||||||||||
|
2008 |
|
|
√ |
|
√ |
|
||||||||||||||||||||||||||
|
① 适用最低压力为-0.1MPa(真空)。 注:1.2008型机械密封用于允许传动轴有较大偏摆量的场合。 2.机械密封与搅拌传动装置支架(HG 21565—1995、HG 21567—1995)配合使用,且应保证机械密封的接管与机架下部窗口的方位一致。 3.机械密封应与循环保护系统(HG 21572—1995)配合使用,详见“搅拌传动装置用机械密封的循环保护系统”节。 4.主要生产厂有天津减速机厂、北京环峰化工机械实验厂、浙江市长城减速机有限公司。 |
||||||||||||||||||||||||||||||||
|
表2 搅拌传动装置机械密封的选用 |
||||||||||||||||||||||||||||||||
|
压力等级 |
介质 |
介质温度/℃ |
推荐使用机械密封型号 |
推荐使用循环保护系统流程① |
||||||||||||||||||||||||||||
|
0.6MPa |
一般性介质 |
≤80 |
2001/2002 |
流程5 |
||||||||||||||||||||||||||||
|
>80~150 |
流程1、4 |
|||||||||||||||||||||||||||||||
|
易燃、易爆、有毒 |
≤80 |
2003 2004/2005 |
流程7、8 |
|||||||||||||||||||||||||||||
|
>80~300 |
流程3、8 |
|||||||||||||||||||||||||||||||
|
1.6MPa |
一般性介质 |
≤80 |
2003/2004/2005 |
流程6、7 |
||||||||||||||||||||||||||||
|
2006/2007/2008 |
流程5、6 |
|||||||||||||||||||||||||||||||
|
>80~300 |
2003/2004/2005 |
流程2、3 |
||||||||||||||||||||||||||||||
|
2006/2007/2008 |
流程1、2 |
|||||||||||||||||||||||||||||||
|
易燃、易爆、有毒 |
≤80 |
2003/2004/2005 |
流程7、8 |
|||||||||||||||||||||||||||||
|
>80~300 |
流程3、8 |
|||||||||||||||||||||||||||||||
|
① 推荐使用循环保护系统流程见图(1)和图(2)。
图(1) 强制循环系统示意图 1—搅拌容器;2—机械密封;3—支架;4—搅拌轴;5—储罐;6—循环泵; 7—隔离液入口管;8—平衡罐;9—加压罐;10—循环泵;11—平衡管
图(2) 热对流循环系统示意图 1—搅拌容器;2—机械密封;3—支架;4—搅拌轴;5—储罐;6—隔离液入口管; 7—平衡罐;8—平衡管;9—加压罐;10—增压罐;11—隔离液出口管;12—气相管
搅拌传动装置机械密封标记 标记方法:
零件材料代号位置如下:
单端面机械密封零件材料代号取前5个位置,双端面机械密封零件材料代号取全部8个位置。 标记示例: 双端面、介质侧、大气侧均为平衡型,系列代号2004型釜用机械密封,公称直径90mm。介质侧,旋转环材料为碳化钨,静止环材料为碳化硅,辅助密封圈为氟橡胶O形圈,弹簧材料为铬镍钢,轴套及箱体与介质接触部分均用铬镍钢;大气侧,旋转环材料为碳化钨,静止环材料为锡磷青铜,辅助密封圈丁腈橡胶O形圈。标记为: HG 21571—1995 MS-2004-090-UOVFFUNP |
||||||||||||||||||||||||||||||||
|
机械密封材料、代号及其组合材料及代号 |
||||||||||||||||||||||||||||||||
|
表3 机械密封材料、代号 |
||||||||||||||||||||||||||||||||
|
旋转环、静止环材料 |
辅助密封圈材料 |
弹簧和结构件 |
||||||||||||||||||||||||||||||
|
碳-石墨 |
金属 |
弹性材料 |
D—— 碳钢 |
|||||||||||||||||||||||||||||
|
At—— 浸铜石墨 |
In—— 金属表面熔焊镍基合金 |
P—— 丁腈橡胶 |
E—— 铬钢 |
|||||||||||||||||||||||||||||
|
Ab—— 浸巴氏石墨 |
Ig—— 金属表面熔焊钴基合金 |
N—— 氯丁橡胶 |
F—— 铬镍钢 |
|||||||||||||||||||||||||||||
|
Bg—— 浸酚醛树脂石墨 |
It—— 金属表面熔焊铁基合金 |
B—— 丁基橡胶 |
C—— 铬镍钼钢 |
|||||||||||||||||||||||||||||
|
Bk—— 浸呋喃树脂石墨 |
J—— 金属表面喷涂 |
E—— 乙丙橡胶 |
M—— 高镍合金 |
|||||||||||||||||||||||||||||
|
Bh—— 浸环氧树脂石墨 |
氮化物 |
S—— 硅橡胶 |
N—— 青铜 |
|||||||||||||||||||||||||||||
|
Cg—— 硅化石墨 |
Q—— 氮化硅 |
V—— 氟橡胶 |
T—— 其他材料 |
|||||||||||||||||||||||||||||
|
金属 |
碳化物 |
M—— 橡胶包覆聚四氟乙烯 |
|
|||||||||||||||||||||||||||||
|
D—— 碳钢 |
U—— 碳化钨 |
|
||||||||||||||||||||||||||||||
|
E—— 铬钢 |
O—— 碳化硅 |
X—— 其他弹性材料 |
|
|||||||||||||||||||||||||||||
|
F—— 铬镍钢 |
L—— 其他碳化物 |
非弹性材料 |
|
|||||||||||||||||||||||||||||
|
G—— 铬镍钼钢 |
金属氧化物 |
T—— 聚四氟乙烯 |
|
|||||||||||||||||||||||||||||
|
H—— 铬镍钢合金 |
V—— 氧化铝 |
A—— 浸渍石墨 |
|
|||||||||||||||||||||||||||||
|
K—— 铬镍钼钢合金 |
W—— 氧化铬 |
F—— 石棉橡胶材料 |
|
|||||||||||||||||||||||||||||
|
M—— 高镍合金 |
X—— 其他金属氧化物 |
C—— 柔性石墨 |
|
|||||||||||||||||||||||||||||
|
N—— 锡磷青铜 |
塑料 |
Y—— 其他非弹性材料 |
|
|||||||||||||||||||||||||||||
|
P—— 铸铁 |
Yt—— 填充玻纤聚四氟乙烯 |
|
|
|||||||||||||||||||||||||||||
|
R—— 合金铸铁 |
Yb—— 填充石墨聚四氟乙烯 |
|
|
|||||||||||||||||||||||||||||
|
S—— 铸造铬钢 |
Z—— 其他工程塑料 |
|
|
|||||||||||||||||||||||||||||
|
T—— 其他金属 |
|
|
|
|||||||||||||||||||||||||||||
|
表4 常用材料组合 |
||||||||||||||||||||||||||||||||
|
介质 |
介 质 侧 |
大 气 侧 |
弹 簧 |
结构件 |
||||||||||||||||||||||||||||
|
性质 |
温度 |
旋转环 |
静止环 |
辅助密封圈 |
旋转环 |
静止环 |
辅助密封圈 |
|||||||||||||||||||||||||
|
一般 |
≤80℃ |
浸渍树脂石墨 (Bq、Bk、Bh) |
碳化钨 (U) |
丁腈橡胶(P) |
浸渍树脂石墨 (Bq、Bk、Bh) |
碳化钨 (U) |
丁腈橡胶(P) |
铬镍钢 (F) |
铬钢(E) |
|||||||||||||||||||||||
|
>80℃ |
氟橡胶(V) |
氟橡胶 (V) |
||||||||||||||||||||||||||||||
|
腐蚀 性强 |
≤80℃ |
碳化硅 (O) |
橡胶包覆聚四 氟乙烯(M) |
铬镍钼钢 (G) |
铬镍钢 (F) |
|||||||||||||||||||||||||||
|
>80℃ |
||||||||||||||||||||||||||||||||
|
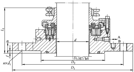
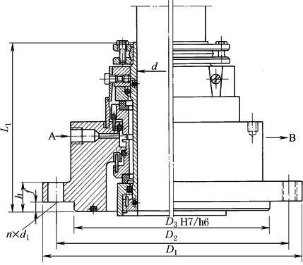
表5 搅拌传动装置机械密封型号和外形尺寸 |
||||||||||||||||||||||||||||||||
|
2001型 2002型 (带内置轴承) 单端面平衡型机械密封 |
2004型 2005型 (带内置轴承) 双端面非平衡型机械密封 |
|||||||||||||||||||||||||||||||
|
径向双端面平衡型机械密封 (2003型) |
||||||||||||||||||||||||||||||||
|
双端面平衡型机械密封 |
双端面平衡型机械密封 (2008型) |
|||||||||||||||||||||||||||||||
|
mm |
||||||||||||||||||||||||||||||||
|
轴径 d |
D1 |
D2 |
D3 (h6) |
螺柱孔 |
L1 (2001、2003、2004、 2006、2008型)不大于 |
L2 (2002、2005、 2007型)不大于 |
封液进出口 A、B |
h① |
f ① |
|||||||||||||||||||||||
|
n |
d1 |
|||||||||||||||||||||||||||||||
|
30 |
175 |
145 |
110 |
4 |
18 |
135 |
215 |
G1/2 |
30 |
6 |
||||||||||||||||||||||
|
40 |
175 |
145 |
110 |
4 |
18 |
135 |
215 |
G1/2 |
||||||||||||||||||||||||
|
50 |
240 |
210 |
176 |
8 |
18 |
140 |
230 |
G1/2 |
32 |
|||||||||||||||||||||||
|
60 |
240 |
210 |
176 |
8 |
18 |
150 |
240 |
G1/2 |
||||||||||||||||||||||||
|
70 |
240 |
210 |
176 |
8 |
18 |
160 |
280 |
G1/2 |
||||||||||||||||||||||||
|
80 |
275 |
240 |
204 |
8 |
22 |
160 |
280 |
G1/2 |
34 |
|||||||||||||||||||||||
|
90 |
305 |
270 |
234 |
8 |
22 |
170 |
280 |
G1/2 |
36 |
|||||||||||||||||||||||
|
100 |
305 |
270 |
234 |
8 |
22 |
170 |
280 |
G1/2 |
||||||||||||||||||||||||
|
110 |
330 |
295 |
260 |
8 |
22 |
195 |
290 |
G1/2 |
38 |
|||||||||||||||||||||||
|
120 |
330 |
295 |
260 |
8 |
22 |
195 |
290 |
G1/2 |
||||||||||||||||||||||||
|
130 |
330 |
295 |
260 |
8 |
22 |
200 |
305 |
G1/2 |
||||||||||||||||||||||||
|
140 |
395 |
350 |
313 |
12 |
22 |
200 |
305 |
G1/2 |
40 |
|||||||||||||||||||||||
|
160 |
395 |
350 |
313 |
12 |
22 |
205 |
310 |
G1/2 |
||||||||||||||||||||||||
|
① 标准中无此尺寸,表中尺寸系为浙江长城减速机有限公司产品。 注:1.机械密封的规格按传动轴轴径d 确定。 2.2008型机械密封允许用于传动轴有较大偏摆量的场合。
机械密封技术条件 (1)主要零件技术要求 1) 密封端面的平面度和粗糙度要求:密封端面的平面度不大于0.0009mm,硬质材料密封端面粗糙度Ra 不大于0.2μm;软质材料密封端面粗糙度Ra 不大于0.4μm。 2) 静止环和旋转环密封端面与辅助密封圈接触的端面的平行度按GB 1184的 7 级公差。 3) 静止环和旋转环与辅助密封圈接触部位的表面粗糙度Ra 不大于3.2μm,外圆或内孔尺寸公差为h8或H8。 4) 静止环密封端面与静止环辅助密封圈接触的外圆的垂直度、旋转环密封端面与旋转环辅助密封圈接触的内孔的垂直度均按GB 1184的 7 级公差。 5) 零件的未注公差尺寸的极限偏差按GB 1804的IT12级公差。 6) 石墨环、填充聚四氟乙烯环及组装的旋转环、静止环要做水压试验。试验压力为设计压力的1.5 倍,持续10min,不应有泄漏现象。 7) 弹簧内径、外径、自由高度、工作压力、弹簧中心线与两端面垂直度等公差值均按GB 1239的 1 级精度要求。 8) 对于多弹簧机械密封,同一套机械密封中各弹簧之间的自由高度差不大于0.5mm。 9) 弹簧座、传动座的内孔尺寸公差为F9,表面粗糙度Ra不大于3.2μm。 10) O形橡胶密封圈的尺寸系列及公差按GB 3452.1,其技术条件按有关标准的规定。 11) 机械密封所用内置轴承为调心滚子轴承。 (2) 机械密封性能要求 1) 泄漏量 a. 泄漏量的测定方法按照HG 2099的规定。其泄漏量为该压力下当量液体的体积,规定为:轴径大于80mm时,泄漏量不大于10mL/h;轴径不大于80mm时,泄漏量不大于8mL/h。单端面机械密封只对泄漏量做定性检查,以肉眼观察无明显气泡为合格。 b.被密封介质为液体时,平均泄漏量规定同本条a。 2) 磨损量的大小要满足釜用机械密封使用期的要求,一般情况下,运转100h,软质材料的密封环磨损量不大于0.03mm。 3) 在选型合理、安装使用正确的情况下,被密封介质为中性、弱腐蚀性气体或液体时,机械密封的使用期一般为8000h;被密封介质为较强腐蚀性或易挥发气体时,机械密封的使用期一般为4000h,特殊情况不受此限。 (3) 机械密封的试验 1) 机械密封新产品必须进行型式试验,试验按照HG 2099要求进行。 2) 机械密封产品出厂前必须进行出厂试验,试验按照HG 2099要求进行。 (4) 安装与使用要求 1) 机械密封的安装与使用要求必须符合HG 21563的有关规定。 2) 安装时应按产品安装使用说明书或样本正确安装。 |
||||||||||||||||||||||||||||||||










