|
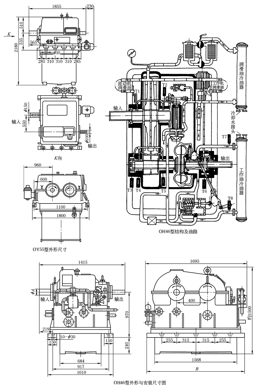
OH46和OY55型 |
||||||||
|
|
||||||||
|
技术性能 |
||||||||
|
型 号 |
输入转速 /r·min-1 |
泵轮转速 /r·min-1 |
传递功率范围 /kW |
额定滑差 S*/% |
调速范围 i |
质 量 /kg |
有关尺寸 /mm |
|
|
f A |
B |
|||||||
|
OH46 |
2985 |
4800 |
1600~3200 |
1.5~3 |
0.2~0.97 |
2900 |
f 100n6 |
1630 |
|
OH46/Ⅰ |
2985 |
5450 |
1600~3200 |
1.5~3 |
0.2~0.97 |
2900 |
f 100n6 |
1630 |
|
OH46/Ⅱ |
1470 |
5450 |
1600~3200 |
1.5~3 |
0.2~0.97 |
2900 |
f 120n6 |
1650 |
|
OY55 |
1492 |
6170 |
3100~5500 |
1.5~3 |
0.2~0.91 |
4600 |
|
|
|
注:1.因有增速齿轮,故泵轮转速高于输入转速。 2.除本体外,还有辅助设备与仪表,包括辅助润滑油泵、润滑油冷却器、工作油冷却器、滤器、执行器、截止阀、压力表、压力开关和温度计等。 3.生产厂家为沈阳水泵厂。 |
||||||||


